Haukelivegen 780B

Vindafjord
Prisantydning

2 490 000,-

  • BRA214㎡
  • EierformSelveier
  • Soverom4
  • Byggeår1954
  • Omkostninger82 740,-
  • Totalpris2 572 740,-

Betydelig påkostet enebolig m/garasje - usjenert og pent opparbeidet hage - Utsikt til fjorden

Visning

mandag 20 april

16:30-17:30

Påmelding
Beskrivelse
  • Nyere kledning.
  • Nyere vinduer (minus ett i stue samt kjeller).
  • Oppgradert el.anlegg m/automatsikringer. Spotbelysning på soverom og i stuen.
  • Drenert rundt boligen.
  • Utvendig belysning har fotoceller som slår på lysene automatisk når det blir mørkt.
  • To utedeler til varmepumper montert på huset. Begge virker, men per i dag er bare den ene i bruk. Eier har den gamle varmepumpen som var i stua før hun kjøpte ny og denne virker enda. Eier hadde tenkt å montere den gamle nede i kjellerstuen, men dette er ikke blitt gjort. Kjøper får med den eldre varmepumpen og kan selv montere denne i kjellerstuen om ønskelig.
  • Smakfullt innredet og betydelig påkostet enebolig med gode og fungerende planløsninger.
  • Fliser på gulv og varmekabler på bad og vindfang. Ellers er gulvene belagt med laminat.
  • Malte vegger i hele huset. Fliser på bad. De fleste veggene er fint malt, men noen vegger kan trenger et nytt malingsstrøk.
  • Fint kjøkken m/moderne Knapphus kjøkkeninnredning fra ca. 2011. Integrert platetopp, steikeovn, oppvaskemaskin og kjøleskap m/frys. Fliser over kjøkkenbenk. Spiseplass.
  • Helfliset baderom m/varmekabler. Spotbelysning. Moderne hvit høyglans baderomsinnredning.
  • Trivelig stue med vedovn og varmepumpe. Utg. til herlig terrasse med nedgang til usjenert hage.
  • Rom i kjeller er benyttet som hobbyrom. Her har det vært mange biljardrunder!
  • Nyere pen innvendig trapp m/belysning i trinn. Nyere inngangsdør.
  • Granitt i vinduskarmer på soverom.

Eiendommen bør absolutt sees for riktig inntrykk. En flott bolig med lavere vedlikeholdsbehov enn normalt.

Detaljer

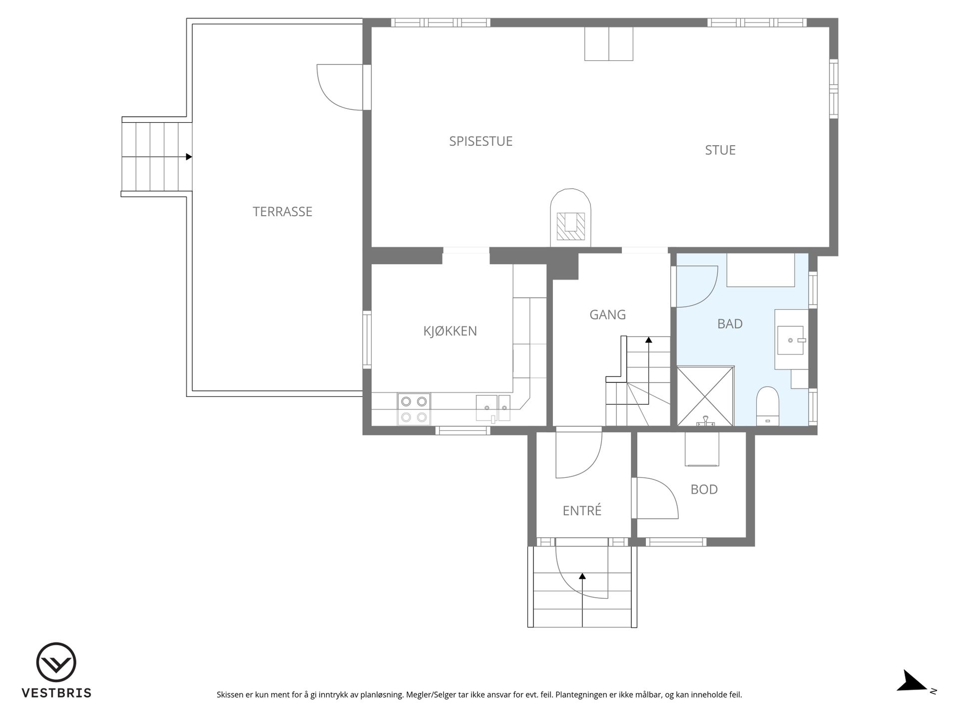
Skiferlagt trapp opp til inngang med moderne ytterdør med sidespeil. Inngang til vindfang med flislagt gulv med varmekabler, spotter i tak, inngang til vaskerom og glassdør videre inn til gang.

Vaskerom med belegg på gulv, baderomsplater på vegger og opplegg for vaskemaskin og tørketrommel. Gang med fint laminatgulv og nydelig hvitmalt trapp med eiketrinn opp til loftsetasjen. Flislagt bad med varmekabler på gulv, moderne stor servant med dobbel underskuff, høyt sideskap, speil med integrert belysning og dusjnisje med regnvannsdusj. Spotter i taket og el. vifte.

Stue med utgang til terrasse, vedovn med glassfront, varmepumpe, spotter i tak, fint malte vegger og fint laminatgulv. Utsikt ned på fjorden fra stua. Terrassen er sørvendt og solrik med markise over sittegruppen og trapp ned til den flotte hagen. Kjøkken med halvannen nedfelt vask i laminatbenkeplate. Fliser over benkeplata. Skap fra gulv til tak med vakker belysning inni skapene med glassfronter. Integrert oppvaskmaskin, int. kjøleskap, int. fryseboks, int. induksjon koketopp og int. stekeovn. Alle integrerte hvitevarer medfølger kjøpet. Spiseplass på kjøkken.

Loft: Trapp opp til gang med laminatgulv og lekekrok. Soverom med laminatgulv og rullegardin i vindu. Utsikt ned på fjorden. Dobbelt soverom med spotter i tak, rullegardin og laminatgulv. Utsikt ned på fjorden. Dobbelt soverom med laminatgulv, spotter i tak, rullegardin i vindu og utsikt ned på fjorden. Soverom med laminatgulv, spotter i tak og rullegardiner i vindu. Utsikt mot sør. Garderoberom med skråtak, laminatgulv og spotter. Det er for lite vindu til å bli kalt et soverom, men kan brukes som et barnerom også om ønskelig av kjøper.

Kjeller: Det er krypekjeller under inngangspartiet. Resten av kjelleren er utgravd. Trapp ned til egen inngang inn til bod med støpt gulv, ny varmtvannsbereder. Opplegg for kaldt og varmt vann.

Hobbyrom hvor eieren har sofa og biljardbord. Det er vinduer for dagslys (ett med sprukket glass), malt betonggulv og malte betongvegger. Ikke godkjent som en kjellerstue.

Frittstående dobbel garasje: I hjørnet på tomta er det en eldre enkel garasje som lett kan omgjøres til en dobbel garasje med å sette inn port foran den ene halvparten som mangler dette i dag. Per i dag er det dobbel lemport foran den ene halvparten (garasjen) som også har plass til lagring av ved og vinterdekk etc. Foran den andre halvparten er det i dag bare vanlig enkel dør slik at denne delen blir brukt som bod i dag. Støpt gulv i uisolert garasje og i boda. Vinduer for dagslys.

Hønsehus: Frittstående eldre hønsehus med gjerdenetting utenfor. Kan brukes som bod eller til høns/kaniner.

Bygningsinformasjon

Boligen er oppført på grunnmur i betong, betonggulv. Yttervegger i tre som er utvendig kledd med trepaneler. Åstak med undertak av tre som er utvendig tekket med skiferstein. Eldre garasje med bod. Oppført på støpt såle. Reisverk og kledning i tre. Takkonstruksjon i tre med takstein Uthus i tre med stålplater på tak.

I vedlagt tilstandsrapport fra tasktmann fremkommer det ett TG3 avvik: 7.2.2 Vaskerom Overflate gulv. TG3- Våtromsbelegget på vaskerommet er av eldre dato og skadet der det tidligere har vært vegger eller installasjoner. Dette svekker tettesjiktet og øker risikoen for fuktproblemer.

Takstmannens vurdering ved TG2: 1.1 Byggegrunn, fundamenter, grunnmur, drenering og sikring mot vann og fuktighet. TG2- Grunnmur og drenering er i hovedsak skjulte konstruksjoner og kan ikke vurderes fullt ut. Tilgjengelige flater fremstår uten avvik, og synlig knotteplast indikerer etablert fuktsikring. 1.2 Krypekjeller. TG2- Krypkjelleren er utilgjengelig for inspeksjon, og det er ingen synlige ventiler i grunnmur. Dette gir betydelig usikkerhet rundt tilstanden og økt risiko for fukt- og råteskader. 1.3 Terrengforhold. TG2- Terrenget er flatt, og kjellertrappen ligger lavere enn omkringliggende terreng. Dette gir risiko for at overflatevann ledes mot konstruksjonen. 2.1 Yttervegger. TG2- Ytterveggene fremstår i hovedsak i bra stand, men grønske og manglende påvist lufting gir økt risiko for fuktproblemer. 3.1 Vinduer og ytterdører. TG2- Vinduer og dører har varierende alder og tilstand. Vinduer fra 2006–2017 fremstår i grei stand, mens eldre kjellervinduer har tydelige skader og må påregnes utskiftet. Ytterdør og øvrige vinduer har behov for vedlikehold. 4.1 Takkonstruksjon, taktekking og skorstein over tak. TG2- Takkonstruksjonen fremstår som solid og uten nedbøy, men stripet borebille på kaldt loft er et avvik som krever videre vurdering. 4.2 Undertak, lekter og yttertekking (taktekkingen). TG2- Skifertaket fra 1954 fremstår i god stand uten løs skifer. Mønebeslag står noe ute av stilling og bør justeres. Øvrige detaljer som blyinndekning og plasttakrenner bør følges opp som del av normalt vedlikehold. 5.1 Loft (konstruksjonsoppbygging). TG2- Kaldtloftet har begrenset tilgjengelighet og manglende påvist lufting. Dette gir betydelig usikkerhet rundt tilstanden og økt risiko for fuktproblemer. 6.1 Balkonger, verandaer og lignende. TG2- Terrassen fremstår som stabil og i bra stand, men har vedlikeholdsbehov og en bærebjelke med synlige skjevheter. 7.1.2 Bad Overflate gulv. TG2- Gulvet har mangelfullt fall, manglende membranoppbrett, utbredt bomlyd og tegn til ufagmessig utførelse. Dette gir økt risiko for skader og vurderes samlet til TG2. 7.1.3 Bad Membran, tettesjiktet og sluk. TG2- Badet har plastsluk med synlig membran av ukjent utførelse og manglende dokumentasjon. Fuktmåling viser ingen avvik, men usikkerhet knyttet til membran og slukforbindelse gjør at forholdet vurderes som avvik med behov for oppfølging. 7.2.1 Vaskerom Overflate vegger og himling. TG2- Vaskerommet har eldre overflater som i hovedsak fremstår hele, men med sprekker og manglende fuktsikring i nedre kant. Ventilasjonen er enkel, men funksjonell. 9.1.3 Kjelleretasje delvis under terreng. Fuktmåling og ventilasjon. TG2- Kjelleren har åpne betongflater med registrert fukt i nedre del av vegger og gulv samt saltutslag. Ventilasjonen er mangelfull, og rommet er fuktutsatt. 10.1 WC og innvendige vann- og avløpsrør. TG2- Vann- og avløpsrør er delvis fornyet i 2012, men store deler av anlegget er av eldre dato. Synlige rør i kjeller gir god kontrollmulighet, men skjulte strekk og eldre rørmaterialer innebærer økt risiko for fremtidige lekkasjer. 10.2 Varmtvannsbereder. TG2- Varmtvannsbereder fra 2012 står i kjeller og fungerer uten registrerte avvik, men alder tilsier at utskifting bør planlegges. 10.5 Ventilasjon. Boligen har naturlig ventilasjon supplert med mekaniske avtrekk på bad og kjøkken. Løsningen fungerer, men gir varierende luftutskifting og krever aktiv bruk av ventiler.

Ferdigattest

Det foreligger ikke ferdigattest eller midlertidig brukstillatelse. Jf. plan- og bygningsloven § 21-10 (5) utstedes det ikke lengre ferdigattest for tiltak det er søkt om før 1/1-98. Dette innebærer at byggverkene lovlig kan brukes og omsettes uten at det foreligger ferdigattest. Det betyr imidlertid ikke at ulovlig bygde tiltak blir lovlige. Ulovlig oppførte tiltak vil kommunen fremdeles kunne forfølge og kreve omsøkt etter dagens regelverk. Kjøper overtar ansvar, risiko og eventuelle konsekvenser knyttet til dette.

Plantegninger for hele boligen foreligger ikke fra kommunen og dagens planløsning kan avvike fra opprinnelig planløsning. Eiendommen selges slik den fremstår og selger påtar seg ikke ansvar for å byggemelde eller få godkjent eventuelle omgjøringer nå i ettertid. Dette blir kjøpers ansvar og risiko siden boligen selges slik den fremstår.

Vei/vann/kloakk

Tilknyttet Ølen Vassverk (privat vannverk). Tilknyttet offentlig kloakk. Eiendommen har biladkomst via regulert gang- og sykkelvei.

Oppvarming

Vedovn og varmepumpe i stue. Elllers annen elektrisk oppvarming. I de rom hvor det på visning ikke er montert panelovner, vil det heller ikke medfølge i handelen.

Siste branntilsyn ble utført 29.10.2015. Det er ikke registrert avvik eller anmerkninger på bruksenheten.

  • Beliggenhet

    Haugane i Ølen. Meget attraktivt beliggende enebolig med skole, barnehage, idrettsanlegg og butikker i umiddelbar nærhet. Ny belyst turløype kun et steinkast fra eiendommen. Usjenert tomt.

    Adkomst

    På toppen av E134 før Fatland tar man av mellom boligbebyggelse og Bilforretning. Boligen kommer som nummer tre på venstra hånd og er merket med "Til Salgs" skilt fra Eiendomsmegler A.

    Regulering

    Eiendommen ligger i område regulert til boligformål. Eldre reguleringsplan gjelder. Den heter Ølen Sentrum, Eide Austre Id 1160-86-11.

    Ihht til kommuneplanen: Delarealer Delareal 494 m KP Hensynsonenavn H910 KP Detaljering Reguleringsplan skal fortsatt gjelde.

    Delareal 229 m KP Hensynsonenavn H220 KP Støy Gul sone iht. T-1442 Delareal 494 m Arealbruk Boligbebyggelse, Nåværende.

    • kr 2 490 000,- (Prisantydning)
    Omkostninger
    • Dokumentavgift 2,5% av kjøpesum
    • Tinglysing pantedokument kr. 545,-
    • Tinglysing skjøte kr. 545,-
    • Gebyr e-tinglysing kr. 500,-
    • Boligkjøperforsikring(valgfri) kr. 18.900,-.
    • kr 82 740,- (Omkostninger totalt)
    • kr 2 572 740,- (Totalpris inkl. omkostninger)

    NB: Regnestykket forutsetter at det kun tinglyses en låneobligasjon og at eiendommen selges til prisantydning da dokumentavgift beregnes med 2.5% av endelig kjøpesum.

  • Kommunale utgifter

    kr 16 517,- pr. 2025. Tilknyttet Ølen Vassverk (privat vannverk). Tilknyttet offentlig kloakk.

    Ligningsverdi

    Basert på Skatteetatens boligkalkulator beregnet boligens formuesverdi til kr. 740 316,- når boligen benyttes som primærbolig.Formuesverdien er en gitt prosent av den beregnede markedsverdien. Beregnet markedsverdi er basert på Statistisk sentralbyrå (SSB) sine opplysninger om omsatte boliger. I beregningen tas det hensyn til boligens beliggenhet, areal, byggeår og boligtype.Det er eier av boligen som fastsetter formuesverdien, men skattemyndighetene kan kontrollere at verdien er satt riktig.Formuesverdi skal ikke overstige:Primærbolig – 25 % av beregnet eller dokumentert markedsverdi opp til kr. 10 000 000, og deretter 70 % av den overskytende markedsverdi Sekundærbolig – 100 % av beregnet eller dokumentert markedsverdi.Formuesverdier som overstiger disse grensene, kan kreves nedjustert av eier.

  • Diverse

    Selger har tegnet avtale om Norgespris på strøm. Denne avtale følger eiendom og har bindingstid ut 2026.

    Sentrale lover

    Eiendommen selges etter reglene i avhendingsloven Eiendommen skal overleveres kjøper i tråd med det som er avtalt. Det er viktig at kjøper setter seg grundig inn i alle salgsdokumentene, herunder salgsoppgave, tilstandsrapport og selgers egenerklæring. Kjøper anses kjent med forhold som er tydelig beskrevet i salgsdokumentene.  Forhold som er beskrevet i salgsdokumentene kan ikke påberopes som mangler. Dette gjelder uavhengig av om kjøper har lest dokumentene. Alle interessenter oppfordres til å undersøke eiendommen nøye, gjerne sammen med fagkyndig før bud inngis. Kjøper som velger å kjøpe usett kan ikke gjøre gjeldende som mangel noe han burde blitt kjent med ved undersøkelsen.Dersom det er behov for avklaringer, anbefaler vi at kjøper rådfører seg med eiendomsmegler eller en bygningssakyndig før det legges inn bud.   Hvis eiendommen ikke er i samsvar med det kjøperen må kunne forvente ut ifra alder, type og synlig tilstand, kan det være en mangel. Det samme gjelder hvis det er holdt tilbake eller gitt uriktige opplysninger om eiendommen. Dette gjelder likevel bare dersom man kan gå ut i fra at det virket inn på avtalen at opplysningen ikke ble gitt eller at feil opplysninger ikke ble rettet i tide på en tydelig måte. En bolig som har blitt brukt i en viss tid, har vanligvis blitt utsatt for slitasje og skader kan ha oppstått. Slik bruksslitasje må kjøper regne med, og det kan avdekkes enkelte forhold etter overtakelse som nødvendiggjør utbedringer. Normal slitasje og skader som nødvendiggjør utbedring, er innenfor hva kjøper må forvente og vil ikke utgjøre en mangel. Boligen kan ha en mangel dersom det er avvik mellom opplyst og faktisk areal, forutsatt at avviket er på 2% eller mer og minimum 1 kvm. Ved beregning av et eventuelt prisavslag eller erstatning må kjøper selv dekke tap/kostnader opptil et beløp på kr 10 000 (egenandel).  Dersom kjøper ikke er forbruker selges eiendommen «som den er», og selgers ansvar er da begrenset jf. avhl. § 3-9, 1. ledd 2. pktm. Avhendingsloven § 3-3 (2) fravikes, og hvorvidt en innendørs arealsvikt karakteriseres som en mangel vurderes etter avhendingsloven § 3-8. Informasjon om kjøpers undersøkelsesplikt, herunder oppfordringen om å undersøke eiendommen nøye, gjelder også for kjøpere som ikke anses som forbrukere. Med forbrukerkjøper menes kjøp av eiendom når kjøperen er en fysisk person som ikke hovedsakelig handler som ledd i næringsvirksomhet.

    Boligselgerforsikring

    Selger har tegnet boligselgerforsikring.

    Boligkjøperforsikring

    Det gjøres oppmerksom på at kjøper har anledning til å tegne boligkjøperforsikring. Forsikringen gir kjøper bistand etter avhendingsloven og dekker inntil 10 timer advokatbistand, skadetakster og utgifter til rettsapparatet mot en egenandel. Forsikringen tegnes senest på kontraktsmøtet. Les mer om forsikringen i salgsoppgaven.

    Bakgrunn for opplysninger i salgsoppgaven

    Salgsoppgaven er utarbeidet ut ifra opplysninger gitt fra selger, befaring av eiendommen samt innhentelse av nødvendige dokumenter og evt. takst.

  • Vedlagt følger Takstrapport og selgers Egenerklæring. Om du mener noen av vedleggene mangler, ta kontakt med megler.

Sist oppdateret: 16. apr. 2026

  • Ansvarlig megler: Vidar Opheim
  • Oppdragsnummer: 01260051
  • Eiendomsmegler A AS Org. nr. NO 893527702 MVA

Annonsene kan være mangelfulle i forhold til lovpålagt opplysningsplikt. Før bindende avtale inngås oppfordres interessenter til å innhente komplett informasjon fra meglerforetaket.

Før du fortsetter!

For å gi deg en bedre opplevelse bruker vi informasjonskapsler for å lagre ikke-sensitiv informasjon om de valgene du gjør. Godkjenn vår bruk av cookies, eller tilpass på innstillinger.

Informasjonskapsler som nettstedet ikke kan fungere skikkelig uten. Dette inkluderer informasjonskapsler for tilgang til sikre områder og CSRF-sikkerhet. Vær oppmerksom på at Crafts (CMS) standard informasjonskapsler ikke samler inn personlig eller sensitiv informasjon.

Statistiske informasjonskapsler hjelper oss å forstå hvordan besøkende bruker nettstedet ved å samle inn og rapportere informasjon anonymt.

Markedsføringskapsler brukes til å spore besøkende på tvers av nettsteder. Hensikten er å vise annonser som er relevante og engasjerende for den enkelte bruker og dermed mer verdifulle for utgivere og tredjepartsannonsører.