Kodlekleiv 11

Tysvær
Prisantydning

4 990 000,-

  • BRA288㎡
  • EierformSelveier
  • Soverom5
  • Byggeår1999
  • Omkostninger144 990,-
  • Totalpris5 134 990,-

Meget innholdsrik bolig med godkjent sokkelleilighet og dobbel garasje. Attraktiv og barnevennlig beliggenhet i Grinde

Visning

tirsdag 28 oktober

16:00-17:00

Påmelding
Beskrivelse

Bolig har i all hovedsak laminat og belegg på gulv. Baderom i hovedetasjen og 2. etasje har fliser på gulv og våtromstapet på vegg. Bad i sokkelleilighet har våtromsbelegg på gulv og tapet på vegg. Malte og tapetserte vegger. Malte plater i tak.

Detaljer
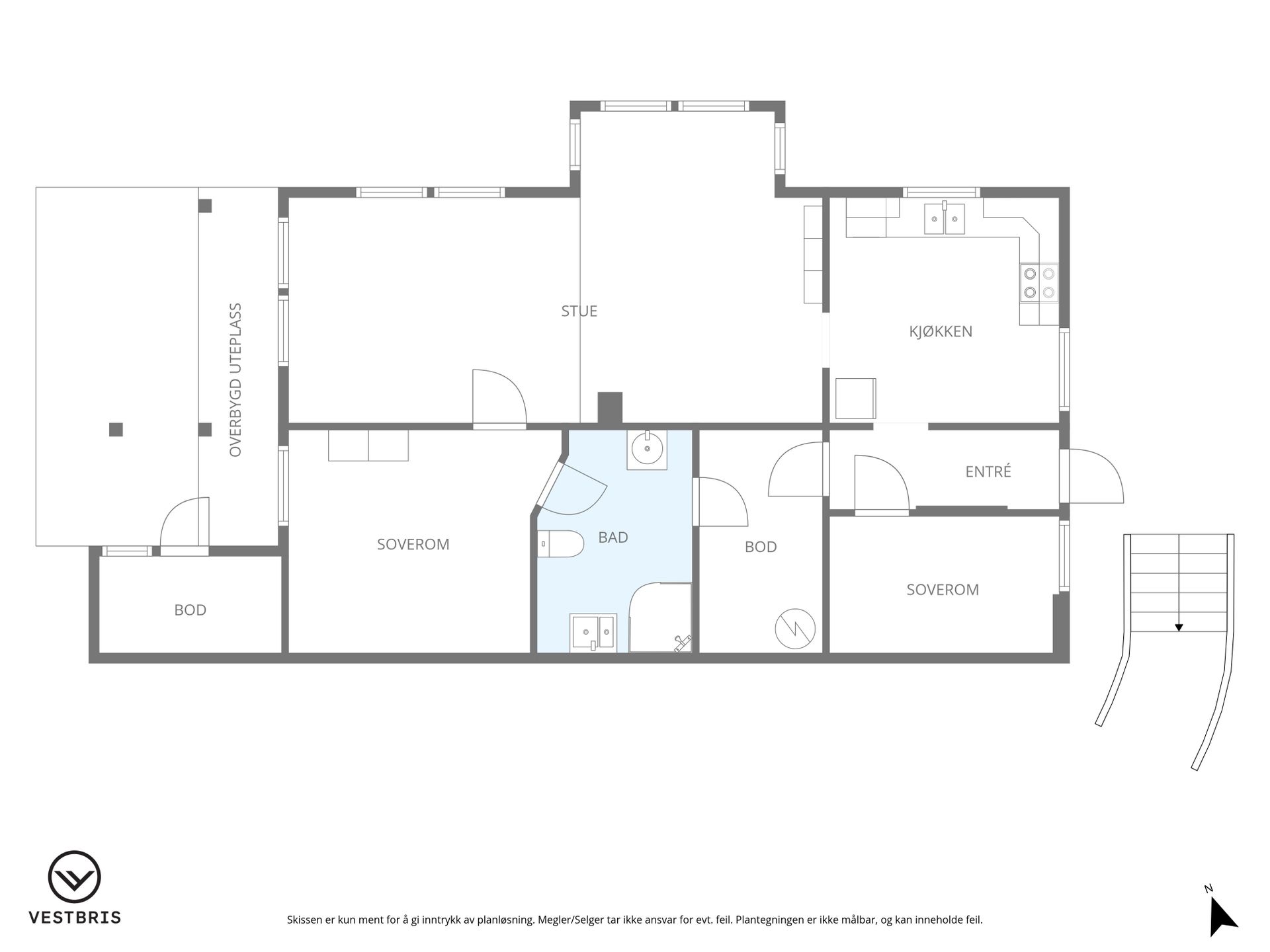
  1. etasje: Sokkelleilighet: Gang, kjøkken, 2 soverom, vaskerom bad og stue.
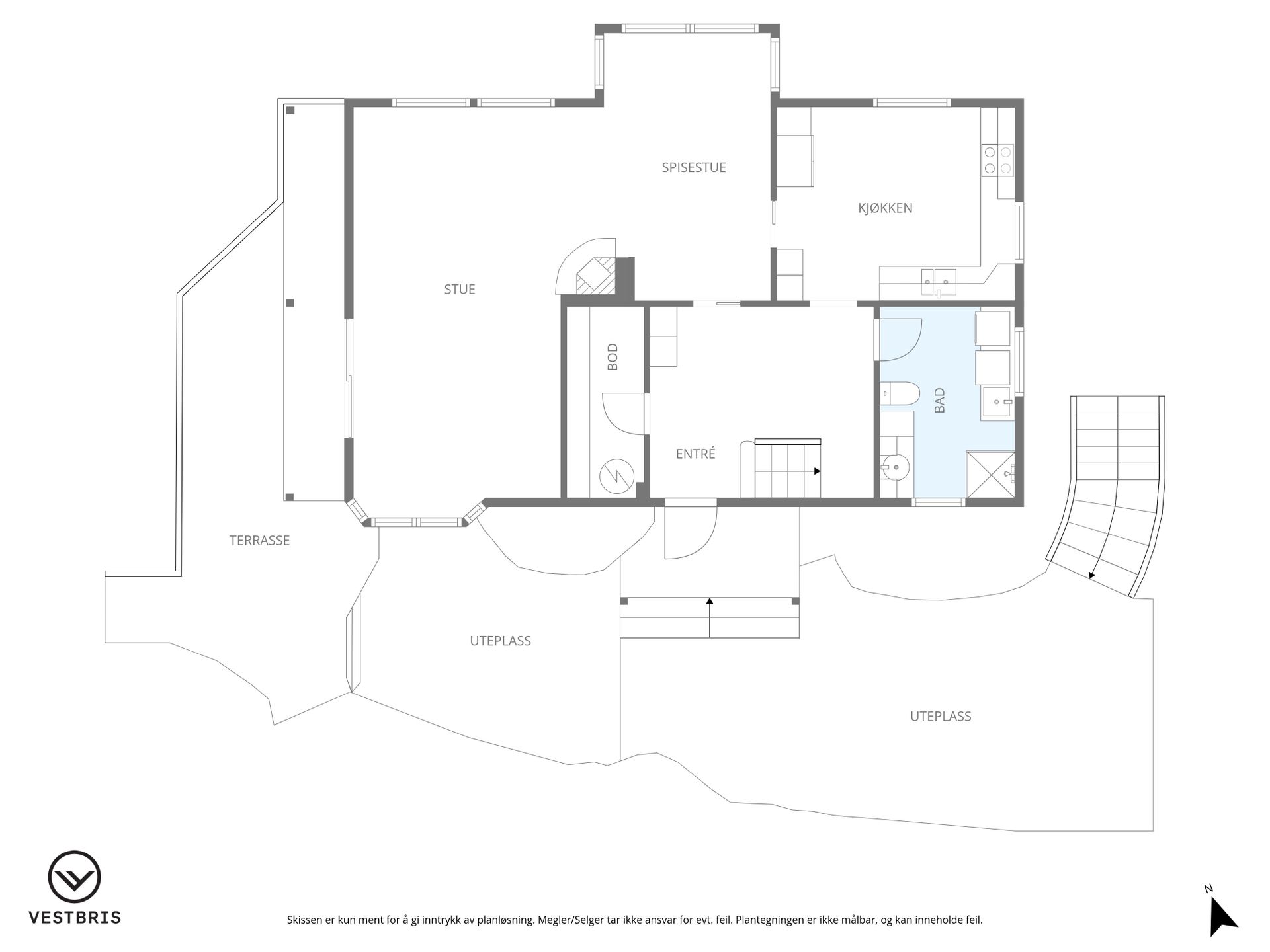
  2. etasje: Hovedleilighet: Gang, bad, kjøkken og stue
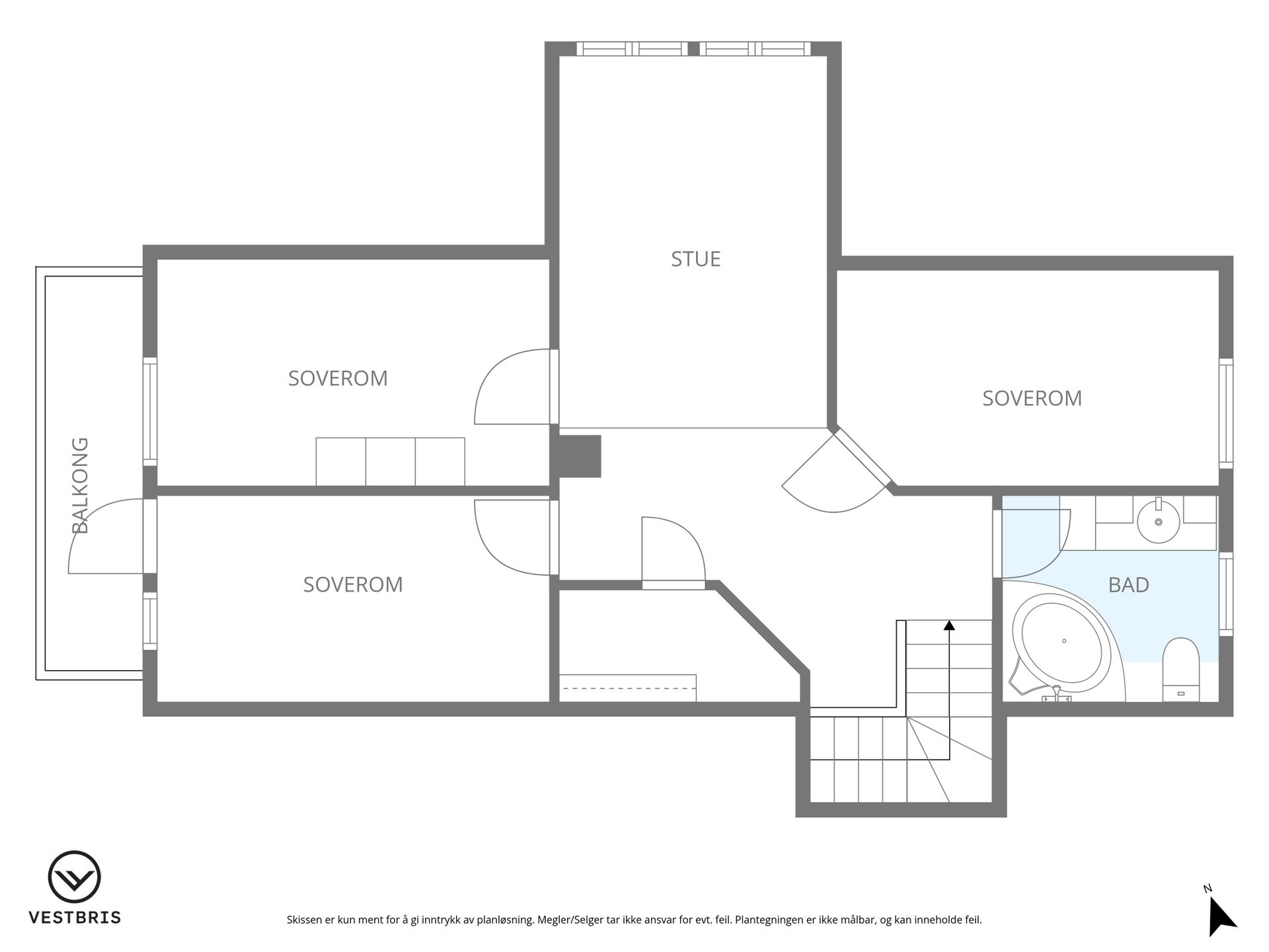
  3. etasje: Stue, bod, 3 soverom og bad.
Bygningsinformasjon

Se vedlagte tilstandsrapport utarbeidet av Takstmann Harald Ingebrigtsen AS datert 16.10.2025 der byggemåte er nærmere beskrevet, og også gitte tilstandsgrader fremkommer. Tilstandsgradene tilsier hvilken tilstand et objekt har i forhold til et definert referansenivå. For nærmere forklaring av tilstandsgrader og hva de angir, se s.3 i tilstandsrapporten.

På denne eiendommen har følgende fått tilstandsgrad 3: TAKSTMANNENS VURDERING VED TG3: 6.1 Terrasser, balkonger, trapper o.l. TG3 vurdert utifra manglende sikring ved sprang over 90 cm mot terreng. Tiltak ifht sikring påkrevd. Takstmannens prisvurdering ved utskiftning antas mellom Kr. 10.000. - og 25.000.-

På denne eiendommen har følgende fått tilstandsgrad 2: TAKSTMANNENS VURDERING VED TG2: 2.1 Yttervegger og veggkonstruksjon TG2 vurdert utifra alder på bygningsdel. Tiltak utover normalt vedlikehold ikke påkrevd. 3.1 Vinduer og ytterdører TG2 vurdert utifra beskrevne avvik og alder på bygningsdel. Tiltak som tetting rundt terrassedør, samt jevnlige utskiftninger av dører og vinduer må påregnes 4.3 Renner, nedløp og beslag TG2 vurdert utifra alder på bygningsdel. Tiltak ikke påkrevd. 9.1.1 Kjellerleilighet delvis under terreng Veggenes og himlingens overflater TG2 vurdert utifra beskrevne avvik ifht bruksslitasje. Tiltak må påregnes. 9.1.2 Kjellerleilighet delvis under terreng Gulvets overflate TG2 vurdert utifra beskrevne avvik ifht bruksslitasje. Tiltak må påregnes. 10.1.1Bad kjellerleilighet Overflate vegger og himling TG2 vurdert utifra beskrevne avvik og alder på bygningsdel. Tiltak må påregnes. 10.1.2Bad kjellerleilighet Overflate gulv TG2 vurdert utifra beskrevne avvik og alder på bygningsdel. Tiltak må påregnes. 10.1.3Bad kjellerleilighet Membran, tettesjiktet og sluk TG2 vurdert utifra beskrevne avvik og alder på bygningsdel. Tiltak må påregnes. 10.2.1Bad loft Overflate vegger og himling TG2 vurdert utifra beskrevne avvik og alder på bygningsdel. Tiltak må påregnes. 10.2.2Bad loft Overflate gulv TG2 vurdert utifra beskrevne avvik og alder på bygningsdel. Tiltak må påregnes. 10.2.3Bad loft Membran, tettesjiktet og sluk TG2 vurdert utifra alder på bygningsdel. Umiddelbare tiltak ikke påkrevd, men bygningsdel må jevnlig overvåkes. 10.3.1Bad 1 etasje Overflate vegger og himling TG2 vurdert utifra beskrevne avvik og alder på bygningsdel. Umiddelbare tiltak ikke påkrevd, men må påregnes. 10.3.2Bad 1 etasje Overflate gulv TG2 vurdert utifra beskrevne avvik og alder på bygningsdel. Umiddelbare tiltak ikke påkrevd, men må påregnes. 10.3.3Bad 1 etasje Membran, tettesjiktet og sluk TG2 vurdert utifra alder på bygningsdel. Umiddelbare tiltak ikke påkrevd, men med tanke på membranens alder så må bygningsdel jevnlig overvåkes. 10.4.1Vaskerom kjellerleilighet Overflate vegger og himling TG2 vurdert utifra beskrevne avvik og alder på bygningsdel. Tiltak må påregnes. 10.4.2Vaskerom kjellerleilighet Overflate gulv TG2 vurdert utifra beskrevne avvik og alder på bygningsdel. Tiltak må påregnes. 10.4.3Vaskerom kjellerleilighet Membran, tettesjiktet og sluk TG2 vurdert utifra beskrevne avvik og alder på bygningsdel. Tiltak må påregnes. 11.1 Kjøkken kjellerleilighet Kjøkken kjellerleilighet TG2 vurdert utifra alder på bygningsdel. Tiltak utover normalt vedlikehold ikke påkrevd. 11.2 Kjøkken 1 etasje Kjøkken 1 etasje TG2 vurdert utifra beskrevet avvik og alder på bygningsdel. Tiltak ikke påkrevd, men utskiftninger og normalt vedlikehold må påregnes. 13.2 Varmtvannsbereder TG22 vurdert utifra alder på bygningsdel. Tiltak ikke påkrevd, men med tanke på berederens alder så må dette påregnes på kort sikt.

Oppgitte arealer er hentet fra vedlagte tilstandsrapport. Megler har ikke foretatt kontrollmåling av boligen.

Se vedlagt rapport for mer informasjon.

Ferdigattest

Bruksløyve datert 27.01.1999. Bruksløuve følger med som vedlegg til salgsoppgaven. Det foreligger melding om bygging garasje. Iflg kommune er den tatt i bruk 31.12.2003. På godkjente tegninger er det avvik på tegninger i forhold til hvordan garasjen fremstår idag. Det er ikke inntegnet vindu på loft.

Adgang til utleie

Separat boenhet i boligen er godkjent innredet. Dette er en selveiende bolig som kan leies ut i sin helhet.

Vei/vann/kloakk

Offentlig vann og kloakk via private stikkledninger.

Oppvarming

Boligen har installert varmepumpe. Det gis ingen garanti på varmepumpe av selger. Det er montert peisovn med innsats i stue. Ellers elektrisk oppvarming i boligen. I de rom hvor det på visning ikke er montert panelovner, vil det heller ikke medfølge i handelen.

  • Beliggenhet

    Boligen ligger i et nyere boligfelt på Garhaug, Grinde.

    Trygg og kort gangvei til område med Skjold IL sitt idrettsanlegg med fotballbaner, ballbinge, flerbrukshall og klubbhus. Grinde er kjent for å ha et aktivt miljø på fritiden for barn og unge. Det er også kort avstand til barnehage/-skole. Ved Stemnestaden er det bademuligheter og samlingsplass for familien.

    Adkomst

    Boligen merkes med «til salgs»-plakat fra Eiendomsmegler A.

    Åpner du annonsen på finn.no eller em-a.no, finner du en kartskisse. Ved å trykke på kartet får du enkelt tilgang til en reiserute fra din startdestinasjon til boligen.

    Regulering

    REGULERINGSFØRESEGNER I TILKNYTING TIL REGULERINGSPLAN FOR GARHAUG DEL AV GNR. 104, GRINDE.

    Delarealer Delareal 795 m Formål Boliger Feltnavn BOLIGER Delareal 10 m Formål Gang-/sykkelvei Feltnavn Gang og sykkelvei

    • kr 4 990 000,- (Prisantydning)
    Omkostninger
    • Dokumentavgift 2,5% av kjøpesum
    • Tinglysing pantedokument kr. 545,-
    • Tinglysing skjøte kr. 545,-
    • Gebyr e-tinglysing kr. 250,-
    • Boligkjøperforsikring(valgfri) kr. 18.900,-
    • kr 144 990,- (Omkostninger totalt)
    • kr 5 134 990,- (Totalpris inkl. omkostninger)

    NB: Regnestykket forutsetter at det kun tinglyses en låneobligasjon og at eiendommen selges til prisantydning da dokumentavgift beregnes med 2.5% av endelig kjøpesum.

  • Kommunale utgifter

    kr 25 721,- pr. 2024. Kommunale avgifter inkluderer: Vatn abonnentsgebyr: kr 1 887,51 Avløp forbruksgebyr: kr 7 946,30 Branntilsyn kvart 4. år: 351,94 Vatn forbruksgebyr: kr. 5 744,56 Avløp abonnentsgebyr: kr. 2 658,28 Feiiing kvart 6 år: kr. 176,05Avgifter til HIM: kr. 6 957,-

    Ligningsverdi

    kr 915 496,- for 2023

  • Diverse

    Selger har tegnet avtale om Norgespris på strøm. Denne avtale følger eiendom og har bindingstid ut 2026.

    Det er montert solcellepanel på taket. Solcellepanelene på taket har 22 måneder igjen av nedbetalingstiden på 5 år (2345,- pr måned.). Ferdig august 2027. For 2023 ble det produsert 8117 kwt, 7320 kwt i 2024 og hittil i år (pr. 22/10-2025) 7758 kwt.

    Kjøper er ansvarlig for å sette seg inn i salgsprospektet, reguleringsplaner, kommuneplan, beskrivelse og annen dokumentasjon som kjøper har fått tilgang på. Dersom noe er uklart, ta kontakt med megler slik at saker kan bli avklart før en bindende avtale finner sted.

    Det gjøres oppmerksom på at vedlagte plantegninger ikke stemmer hva gjelder faktisk innredning og møblering etc. Den er ikke målbar, samt at avvik og feil kan forekomme.

    Sentrale lover

    Eiendommen selges etter reglene i avhendingsloven Eiendommen skal overleveres kjøper i tråd med det som er avtalt. Det er viktig at kjøper setter seg grundig inn i alle salgsdokumentene, herunder salgsoppgave, tilstandsrapport og selgers egenerklæring. Kjøper anses kjent med forhold som er tydelig beskrevet i salgsdokumentene.  Forhold som er beskrevet i salgsdokumentene kan ikke påberopes som mangler. Dette gjelder uavhengig av om kjøper har lest dokumentene. Alle interessenter oppfordres til å undersøke eiendommen nøye, gjerne sammen med fagkyndig før bud inngis. Kjøper som velger å kjøpe usett kan ikke gjøre gjeldende som mangel noe han burde blitt kjent med ved undersøkelsen.Dersom det er behov for avklaringer, anbefaler vi at kjøper rådfører seg med eiendomsmegler eller en bygningssakyndig før det legges inn bud.   Hvis eiendommen ikke er i samsvar med det kjøperen må kunne forvente ut ifra alder, type og synlig tilstand, kan det være en mangel. Det samme gjelder hvis det er holdt tilbake eller gitt uriktige opplysninger om eiendommen. Dette gjelder likevel bare dersom man kan gå ut i fra at det virket inn på avtalen at opplysningen ikke ble gitt eller at feil opplysninger ikke ble rettet i tide på en tydelig måte. En bolig som har blitt brukt i en viss tid, har vanligvis blitt utsatt for slitasje og skader kan ha oppstått. Slik bruksslitasje må kjøper regne med, og det kan avdekkes enkelte forhold etter overtakelse som nødvendiggjør utbedringer. Normal slitasje og skader som nødvendiggjør utbedring, er innenfor hva kjøper må forvente og vil ikke utgjøre en mangel. Boligen kan ha en mangel dersom det er avvik mellom opplyst og faktisk areal, forutsatt at avviket er på 2% eller mer og minimum 1 kvm. Ved beregning av et eventuelt prisavslag eller erstatning må kjøper selv dekke tap/kostnader opptil et beløp på kr 10 000 (egenandel).  Dersom kjøper ikke er forbruker selges eiendommen «som den er», og selgers ansvar er da begrenset jf. avhl. § 3-9, 1. ledd 2. pktm. Avhendingsloven § 3-3 (2) fravikes, og hvorvidt en innendørs arealsvikt karakteriseres som en mangel vurderes etter avhendingsloven § 3-8. Informasjon om kjøpers undersøkelsesplikt, herunder oppfordringen om å undersøke eiendommen nøye, gjelder også for kjøpere som ikke anses som forbrukere. Med forbrukerkjøper menes kjøp av eiendom når kjøperen er en fysisk person som ikke hovedsakelig handler som ledd i næringsvirksomhet.

    Boligselgerforsikring

    Selger har tegnet boligselgerforsikring.

    Boligkjøperforsikring

    Det gjøres oppmerksom på at kjøper har anledning til å tegne boligkjøperforsikring. Forsikringen gir kjøper bistand etter avhendingsloven og dekker inntil 10 timer advokatbistand, skadetakster og utgifter til rettsapparatet mot en egenandel. Forsikringen tegnes senest på kontraktsmøtet. Les mer om forsikringen i salgsoppgaven.

    Bakgrunn for opplysninger i salgsoppgaven

    Salgsoppgaven er utarbeidet ut ifra opplysninger gitt fra selger, befaring av eiendommen samt innhentelse av nødvendige dokumenter og evt. takst.

  • Vedlagt følger Takstrapport, selgers Egenerklæring, bruksløyve datert 27/1-1999, grunnkart og tegninger garasje. Om du mener noen av vedleggene mangler, ta kontakt med megler.

Sist oppdateret: 23. okt. 2025

  • Oppdragsnummer: 01250295
  • Eiendomsmegler A AS Org. nr. NO 893527702 MVA

Annonsene kan være mangelfulle i forhold til lovpålagt opplysningsplikt. Før bindende avtale inngås oppfordres interessenter til å innhente komplett informasjon fra meglerforetaket.

Før du fortsetter!

For å gi deg en bedre opplevelse bruker vi informasjonskapsler for å lagre ikke-sensitiv informasjon om de valgene du gjør. Godkjenn vår bruk av cookies, eller tilpass på innstillinger.

Informasjonskapsler som nettstedet ikke kan fungere skikkelig uten. Dette inkluderer informasjonskapsler for tilgang til sikre områder og CSRF-sikkerhet. Vær oppmerksom på at Crafts (CMS) standard informasjonskapsler ikke samler inn personlig eller sensitiv informasjon.

Statistiske informasjonskapsler hjelper oss å forstå hvordan besøkende bruker nettstedet ved å samle inn og rapportere informasjon anonymt.

Markedsføringskapsler brukes til å spore besøkende på tvers av nettsteder. Hensikten er å vise annonser som er relevante og engasjerende for den enkelte bruker og dermed mer verdifulle for utgivere og tredjepartsannonsører.