Mannesvegen tomt

Karmøy
Prisantydning

1 100 000,-

  • BRA
  • EierformSelveier
  • Soverom0
  • Byggeår
  • Omkostninger47 740,-
  • Totalpris1 147 740,-

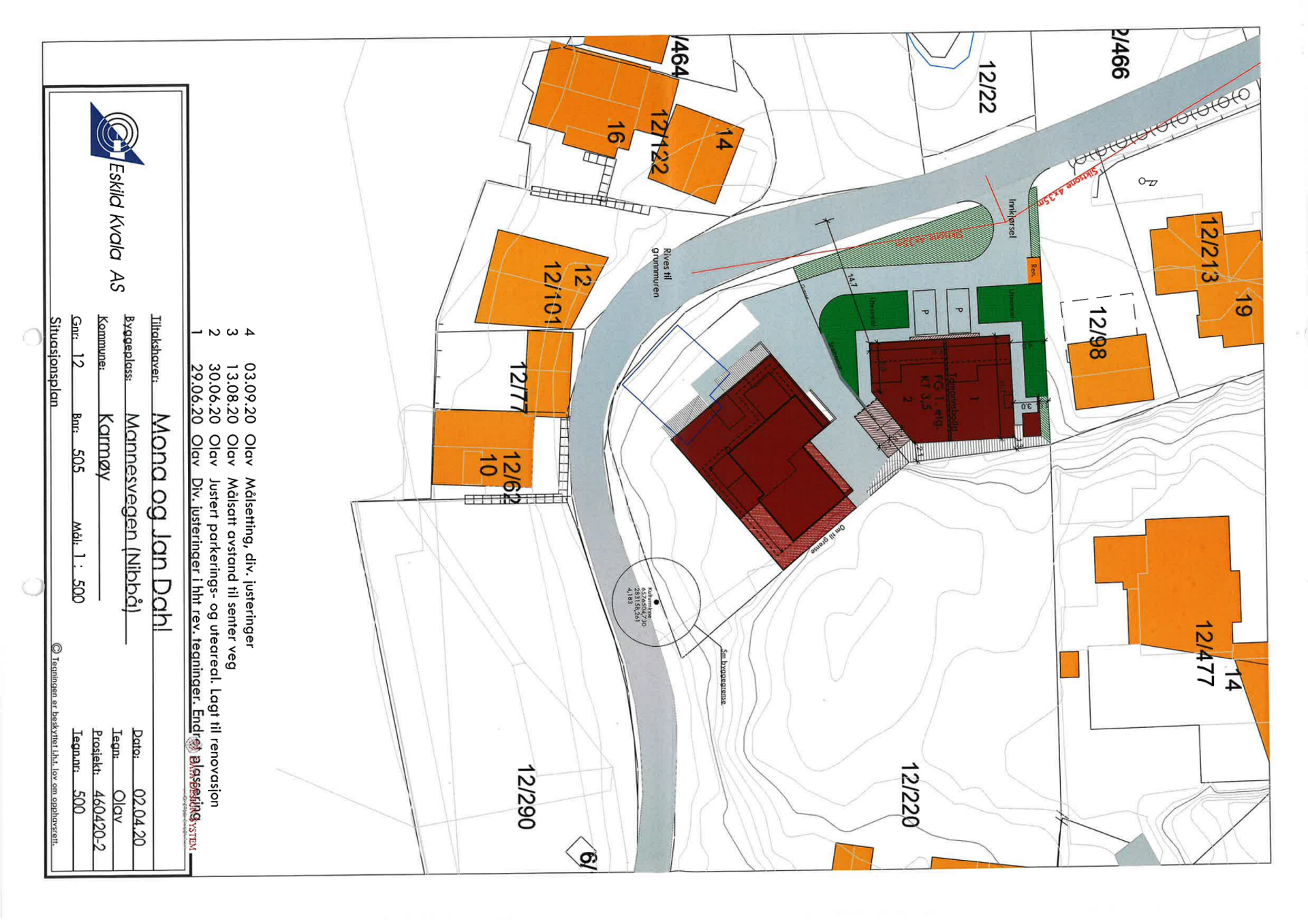
Tomt med nydelig sjøutsikt i Nibbesvingen - Tegninger til tidligere godkjent tomannsbolig medfølger

Vei/vann/kloakk

I følge kommunens ledningskart ligger det vannledning i sør/vestre del av tomten som går til boligen i Mannesvegen 19. Tinglyst rettighet på at 12/505 gis fra 12/76 rettighet til å ha liggende VA- anlegg/avløpsledning over 12/76. Ledning legges fra slamavskiller, derfra langs Mannesvegen og frem til Kommunalt anlegg. Tinglyst rettighet på at eier av 12/76 og 12/505 har rett til å anlegge og vedlikeholde overvannsrør til sjø over eiendom 12/22. Fremtidige kostnader med forlengelse av grøft og rør ved en eventuell videre utfylling i sjø, opparbeidelse av kai eller lignende, dekkes i sin helhet av rettighetshavere til 12/76 og 12/505.

Det er også tinglyst veirett, som også omhandler ansvar for vedlikehold.

  • Beliggenhet

    Eiendommen har flott beliggenhet med muligheter for nydelig sjøutsikt. Kort gangavstand til barnehage, skole og "på kaien" (med kjekke arrangementer som konserter, julebord, selskaper, quiz, kurs, i tillegg matservering)
    Ellers kort avstand til Åkrehamn sentrum med alle fasiliteter man trenger i hverdagen.

    Adkomst

    Se Finn. no eller Em-a.no for riktig veibeskrivelse.

    Regulering

    Eiendommen ligger i et område regulert til boligformål. Det må påregnes byggearbeider på nabotomten i fremtiden.

    • kr 1 100 000,- (Prisantydning)
    Omkostninger
    • Dokumentavgift 2,5% av kjøpesum
    • Tinglysing pantedokument kr. 545,-
    • Tinglysing skjøte kr. 545,-
    • Gebyr e-tinglysing kr. 250,-
    • Boligkjøperforsikring(valgfri) kr. 18 900,-
    • kr 47 740,- (Omkostninger totalt)
    • kr 1 147 740,- (Totalpris inkl. omkostninger)

    NB: Regnestykket forutsetter at det kun tinglyses en låneobligasjon og at eiendommen selges til prisantydning da dokumentavgift beregnes med 2.5% av endelig kjøpesum.

  • Kommunale utgifter

    Det løper per dags dato ingen kommunale avgifter på eiendommen.

    Ligningsverdi

    Vi har ikke mottatt ligningsverdi. Ny eier må påregne at ligningsverdien vil bli ca 30% av markedsverdi.

  • Sentrale lover

    Eiendommen selges etter reglene i avhendingsloven Eiendommen skal overleveres kjøper i tråd med det som er avtalt. Det er viktig at kjøper setter seg grundig inn i alle salgsdokumentene, herunder salgsoppgave, tilstandsrapport og selgers egenerklæring. Kjøper anses kjent med forhold som er tydelig beskrevet i salgsdokumentene.  Forhold som er beskrevet i salgsdokumentene kan ikke påberopes som mangler. Dette gjelder uavhengig av om kjøper har lest dokumentene. Alle interessenter oppfordres til å undersøke eiendommen nøye, gjerne sammen med fagkyndig før bud inngis. Kjøper som velger å kjøpe usett kan ikke gjøre gjeldende som mangel noe han burde blitt kjent med ved undersøkelsen.Dersom det er behov for avklaringer, anbefaler vi at kjøper rådfører seg med eiendomsmegler eller en bygningssakyndig før det legges inn bud.   Hvis eiendommen ikke er i samsvar med det kjøperen må kunne forvente ut ifra alder, type og synlig tilstand, kan det være en mangel. Det samme gjelder hvis det er holdt tilbake eller gitt uriktige opplysninger om eiendommen. Dette gjelder likevel bare dersom man kan gå ut i fra at det virket inn på avtalen at opplysningen ikke ble gitt eller at feil opplysninger ikke ble rettet i tide på en tydelig måte. En bolig som har blitt brukt i en viss tid, har vanligvis blitt utsatt for slitasje og skader kan ha oppstått. Slik bruksslitasje må kjøper regne med, og det kan avdekkes enkelte forhold etter overtakelse som nødvendiggjør utbedringer. Normal slitasje og skader som nødvendiggjør utbedring, er innenfor hva kjøper må forvente og vil ikke utgjøre en mangel. Boligen kan ha en mangel dersom det er avvik mellom opplyst og faktisk areal, forutsatt at avviket er på 2% eller mer og minimum 1 kvm. Ved beregning av et eventuelt prisavslag eller erstatning må kjøper selv dekke tap/kostnader opptil et beløp på kr 10 000 (egenandel).  Dersom kjøper ikke er forbruker selges eiendommen «som den er», og selgers ansvar er da begrenset jf. avhl. § 3-9, 1. ledd 2. pktm. Avhendingsloven § 3-3 (2) fravikes, og hvorvidt en innendørs arealsvikt karakteriseres som en mangel vurderes etter avhendingsloven § 3-8. Informasjon om kjøpers undersøkelsesplikt, herunder oppfordringen om å undersøke eiendommen nøye, gjelder også for kjøpere som ikke anses som forbrukere. Med forbrukerkjøper menes kjøp av eiendom når kjøperen er en fysisk person som ikke hovedsakelig handler som ledd i næringsvirksomhet.

    Boligselgerforsikring

    Selger har tegnet boligselgerforsikring.

    Boligkjøperforsikring

    Det gjøres oppmerksom på at kjøper har anledning til å tegne boligkjøperforsikring. Forsikringen gir kjøper bistand etter avhendingsloven og dekker inntil 10 timer advokatbistand, skadetakster og utgifter til rettsapparatet mot en egenandel. Forsikringen tegnes senest på kontraktsmøtet. Les mer om forsikringen i salgsoppgaven.

    Bakgrunn for opplysninger i salgsoppgaven

    Salgsoppgaven er utarbeidet ut ifra opplysninger gitt fra selger, befaring av eiendommen samt innhentelse av nødvendige dokumenter og evt. takst.

  • Vedlagt følger selgers Egenerklæring. Om du mener noen av vedleggene mangler, ta kontakt med megler.

Sist oppdateret: 24. okt. 2025

  • Ansvarlig megler: Fred Lippens
  • Oppdragsnummer: 01250282
  • Eiendomsmegler A AS Org. nr. NO 893527702 MVA

Annonsene kan være mangelfulle i forhold til lovpålagt opplysningsplikt. Før bindende avtale inngås oppfordres interessenter til å innhente komplett informasjon fra meglerforetaket.

Før du fortsetter!

For å gi deg en bedre opplevelse bruker vi informasjonskapsler for å lagre ikke-sensitiv informasjon om de valgene du gjør. Godkjenn vår bruk av cookies, eller tilpass på innstillinger.

Informasjonskapsler som nettstedet ikke kan fungere skikkelig uten. Dette inkluderer informasjonskapsler for tilgang til sikre områder og CSRF-sikkerhet. Vær oppmerksom på at Crafts (CMS) standard informasjonskapsler ikke samler inn personlig eller sensitiv informasjon.

Statistiske informasjonskapsler hjelper oss å forstå hvordan besøkende bruker nettstedet ved å samle inn og rapportere informasjon anonymt.

Markedsføringskapsler brukes til å spore besøkende på tvers av nettsteder. Hensikten er å vise annonser som er relevante og engasjerende for den enkelte bruker og dermed mer verdifulle for utgivere og tredjepartsannonsører.