Nordre Ådlandsveg 4

Karmøy
Prisantydning

2 950 000,-

  • BRA173㎡
  • EierformSelveier
  • Soverom5
  • Byggeår1957
  • Omkostninger94 240,-
  • Totalpris3 044 240,-

Sjarmerende enebolig m/garasje, hagestue og drivhus - Kort avstand til barneskole og Åkrasand - Innholdsrik/solrik hage

Visning

torsdag 5 februar

16:00-17:00

Påmelding
Beskrivelse

Boligen holder god standard og er oppgradert gjennom tiden med bla: -Nyere praktisk kjøkken innredning med god skap/benkeplass. Integrerte hvitevarer. -Flott klebersteinsovn som skaper en hyggelig atmosfære og gir god oppvarming. Det er også varmepumpe i stuen. -Baderom er oppgradert i nyere tid med gulvbelegg, baderomsplater, moderne dobbel servant med skuffer, speil og dusjvegger. -Eier har åpnet stuen - hvor tidligere soverom befant seg i hovedetasjen. Mulighet for å tilbakeføre soverom ved behov. 2.stk. vinduer i stue er skiftet. Vindu mot vest er byttet i 2023 (2-lags). Vindu mot sør er skiftet i 2024 (støydempende 3-lags). -Loftsetasjen er isolert mot tak i soverom mot sør, med trefiberisolasjon. I denne forbindelse ble også innvendig himling noe hevet, slik at bjelkene ble synlige. Det er også installert nytt vindu på dette rom i 2024 (støydempende 3-lags). -Oljetank er tømt. -I kjelleretasje "trapperom" er vegg mot øst revet og behandlet med diffusjonssperr og drenert utvendig. Egen inngang til kjelleretasje med nyere dør. I kjeller er det også montert 3 stk. mekaniske vifter (ventilasjon) for bedre inneklima. I tillegg er det varmepumpe i trapperommet. Montert 2 store vinduer mot vest i 2024 (støydempende 3-lags). -Det er 2 .stk soverom i kjelleretasjen. Rommene er romslige med nyere vinduer. Det er peis i det ene rommet. -Oppgradert noe elektrisk: Noe sikringer, flere stikkontakter, nytt inntak og el-bil lader.

Detaljer

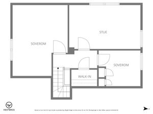
Boligen er innredet over 3 plan og Inneholder: Kjeller: Kjellerstue, 2 soverom og bod. Første etasje: Vindfang, Wc/vaskerom, gang, bad og stue/kjøkken. Loft: 3 soverom, bod og gang.

Utvendig: Garasje: Garasjen er i enkel standard, men har elektrisk port og oppbevaringsloft. Drivhus. Hagestue. (Hagestue er ikke byggemeldt/søkt om)

Bygningsinformasjon

Takstmannens vurdering ved TG2:

1.1 Byggegrunn, fundamenter og grunnmur TG2 vurdert utifra alder og forventet levetid på bygningsdel. Risiko/konsekvens: Manglende moderne fuktsikring kan gi økt risiko for fuktinntrengning, kapillært opptrekk og lokale skader i murverket over tid. Skjulte forhold kan ikke vurderes uten ytterligere undersøkelser, og eventuelle fuktproblemer kan føre til nedbrytning av materialer, luktproblematikk eller behov for tiltak i kjeller/boder. Anbefalte tiltak: Videre overvåkning anbefales. Dersom det oppstår tegn til fukt, misfarging eller avskalling, bør det vurderes nærmere undersøkelser og eventuelle tiltak som dreneringsforbedring, utvendig fuktsikring eller lokal reparasjon av mur.

2.1 Yttervegger og veggkonstruksjon TG2 vurdert utifra beskrevne avvik på bygningsdel. Risiko/konsekvens: Sprekkdannelser i puss kan gi økt risiko for fuktinntrengning i veggkonstruksjonen. Over tid kan dette føre til nedbrytning av puss, frostsprengning, misfarging og behov for mer omfattende reparasjoner. Ved vedvarende fukt kan også mur og mørtelfuger påvirkes negativt. Anbefalte tiltak: Det anbefales å utbedre sprekkene ved reparasjon av puss og kontroll av underlaget. Videre utvikling bør overvåkes, og ytterligere tiltak vurderes dersom skadene øker i omfang.

3.1 Vinduer og ytterdører TG2 vurdert utifra alder på bygningsdel. Risiko og konsekvens: Store aldersforskjeller kan gi varierende komfort og energitap. Eldre vinduer kan medføre trekk, kondensproblemer og økt varmetap, samt behov for hyppigere vedlikehold eller utskiftning. Punkterte glass kan gi redusert sikt og dårligere isolasjon. Anbefalt tiltak: Det anbefales å følge opp eldre vinduer med jevnlig vedlikehold og vurdere utskiftning der tilstand eller funksjon tilsier det. Eventuelle punkterte glass bør skiftes. Nyere vinduer krever normalt kun ordinært vedlikehold.

4.2 Undertak, lekter og yttertekking (taktekkingen) TG2 vurdert utifra alder og forventet levetid på bygningsdel. Risiko og konsekvens: Økt risiko for slitasje, oppsprekking og redusert tetthet ved høy alder. Potensiell risiko for lekkasjer dersom stein er skadet eller undertak har svekket funksjon. Begrenset inspeksjonshøyde gjør at skjulte forhold ikke kan utelukkes. Eldre taktekking kan kreve hyppigere vedlikehold og kan nærme seg tidspunkt for utskifting. Anbefalt tiltak: Det anbefales en nærmere kontroll av taktekking og undertak fra taknivå for å avdekke eventuell slitasje eller skader. Jevnlig overvåking av bygningsdel må utføres, spesielt med tanke på alder. Eventuelle skader eller svakheter bør utbedres, og utskiftning bør vurderes dersom tilstanden tilsier det.

7.1 Piper og ildsteder TG2 vurdert utifra alder og forventet levetid på bygningsdel. Risiko og konsekvens: Eldre teglsteinspiper kan ha slitasje i fuger og innvendige løp som ikke er synlig uten kamerainspeksjon. Eventuelle skjulte sprekker eller utettheter kan gi risiko for røyklekkasje eller redusert trekk. Belastning fra flere ildsteder kan øke krav til vedlikehold og kontroll. Manglende dokumentasjon eller nyere tilsyn gjør at tilstanden ikke kan vurderes fullt ut. Anbefalte tiltak: Ordinær oppfølging og jevnlig feiing/tilsyn anbefales. Stålrør innvendig bør vurderes. Ved endringer i bruk eller installasjon av nye ildsteder bør pipen vurderes av fagperson. Kamerainspeksjon kan vurderes dersom det oppstår tegn til svekket trekk, sotlukt eller misfarging.

8.1 Etasjeskillere TG2 vurdert utifra beskrevne avvik på bygningsdel. Risiko og konsekvens: Skjevheter kan gi estetiske ujevnheter i gulv og påvirke opplevelsen av planhet. Eldre konstruksjoner kan ha skjulte forhold som ikke avdekkes ved visuell inspeksjon alene. Dersom skjevhetene utvikler seg, kan det indikere underliggende bevegelser som bør følges opp. Anbefalt tiltak: Ingen umiddelbare tiltak vurderes som nødvendig. Videre observasjon anbefales som del av normalt vedlikehold. Dersom skjevheter øker eller oppstår tegn til svikt, bør konstruksjonen vurderes nærmere av fagperson.

9.1.3 Kjeller delvis under terreng. Fuktmåling og ventilasjon Risiko og konsekvens: Vedvarende fukt kan føre til økende råteskader i treverk og nedbrytning av materialer. Risiko for muggvekst og redusert inneklima dersom fuktproblematikken utvikler seg. Skjulte skader kan være større enn det som er avdekket ved stikktagning. Fukt i betong og treverk kan gi behov for mer omfattende tiltak dersom forholdene ikke utbedres. Anbefalte tiltak: Det anbefales å åpne veggflater i området med råteskader for å kartlegge skadeomfang og sikre nødvendig utskiftning av skadet materiale. Forholdene rundt drenering og terrengfall bør vurderes nærmere og eventuelt utbedres for å redusere fuktbelastningen. Videre overvåkning av fuktverdier anbefales, og tiltak bør iverksettes dersom målingene øker eller nye symptomer oppstår. Sørg for god ventilajson og jevnlig lufting i kjelleretasjen.

10.2.1 Vaskerom 1 etasje Overflate vegger og himling TG2 vurdert utifra beskrevne avvik. Risiko og konsekvens: Sprekker i tapet kan gi økt risiko for fuktinntrengning i veggkonstruksjonen. Fuktpåvirket innredning kan forverres over tid og gi behov for utskiftning. Ved vedvarende fukt kan det oppstå muggvekst, lukt og skader på underliggende materialer. Skader i overflater kan redusere rommets funksjon og levetid. Anbefalte tiltak: Reperasjon eller utskiftning av skadet våtromstapet anbefales for å sikre tilfredsstillende fuktsperre. Skadet seksjon bør vurderes utskiftet. Videre oppfølging av ventilasjon og fuktbelastning anbefales for å redusere risiko for nye skader.

13.1 WC og innvendige vann- og avløpsrør TG2 vurdert utifra beskrevet avvik. Vurdering/risiko: Selv om synlige deler av anlegget fremstår i god teknisk stand, innebærer manglende fordelerskap at eventuelle lekkasjer i skjulte rørstrekk ikke nødvendigvis vil oppdages tidlig. Moderne rør-i-rør systemer skal normalt ha fordelerskap med lekkasjevarsling og synliggjøring av eventuelle vannskader. Fraværet av dette gir økt usikkerhet rundt skjulte deler av anlegget. Konsekvens: Skjulte lekkasjer kan utvikle seg over tid uten å bli oppdaget. Økt risiko for fuktskader i konstruksjoner ved lekkasje. Manglende lekkasjevarsling kan gi større skadeomfang før tiltak iverksettes. Avvik fra dagens anbefalte løsninger for rør-i-rør systemer. Anbefalt tiltak: Det anbefales å etablere fordelerskap ved eventuell oppgradering eller ombygging av anlegget. Videre bør skjulte rørstrekk følges opp ved mistanke om lekkasje eller endringer i trykk/forbruk.

Takstmannens vurdering ved TG3:

1.3 Drenering TG3 vurdert utifra beskrevne avvik. Risiko og konsekvens: økt risiko for fuktinntrengning i grunnmur og gulvkonstruksjoner. Mulig utvikling av fuktskader, avskalling, luktproblematikk eller redusert inneklima. Vedvarende fukt kan over tid føre til materialnedbrytning og behov for mer omfattende tiltak. Terrengfall mot bygningen kan forsterke vannbelastningen ved nedbør og snøsmelting. Anbefalt tiltak: Etablere tilfredsstillende fall på terreng bort fra grunnmur der dette er mulig. Vurdere tilstand og funksjon på eldre drenering, og eventuelt etablere ny drenering rundt resterende deler av bygget. Følge opp fuktverdier og vurdere ytterligere undersøkelser dersom fuktproblematikken vedvarer. Utbedringskostnaden vurderes som middels, jf. rapportens sjablonmessige kostnadsklasser.

Ferdigattest

Det foreligger ikke ferdigattest eller midlertidig brukstillatelse. Jf. plan- og bygningsloven § 21-10 (5) utstedes det ikke lengre ferdigattest for tiltak det er søkt om før 1/1-98. Dette innebærer at byggverkene lovlig kan brukes og omsettes uten at det foreligger ferdigattest. Det betyr imidlertid ikke at ulovlig bygde tiltak blir lovlige. Ulovlig oppførte tiltak vil kommunen fremdeles kunne forfølge og kreve omsøkt etter dagens regelverk. Kjøper overtar ansvar, risiko og eventuelle konsekvenser knyttet til dette. Hagestue er ikke byggemeldt/søkt om.

Megler har ikke mottatt bygningstegninger eller annen dokumentasjon fra kommunen som viser hva som er godkjent innredet eller eventuelt bruksendret. Megler har derfor ikke grunnlag for å vurdere hva som er godkjent innredet i henhold til gjeldende tillatelser.

Adgang til utleie

Dette er en selveiende bolig som kan leies ut i sin helhet.

Vei/vann/kloakk

Offentlig vann og kloakk. Privat septikanlegg.

Oppvarming

Boligen har installert varmepumpe (2.stk) og 2 vedovner. Det gis ingen garanti på varmepumpe av selger. Ellers elektrisk oppvarming i boligen. I de rom hvor det på visning ikke er montert panelovner, vil det heller ikke medfølge i handelen.

  • Beliggenhet

    Fra eiendommen er det kort gangavstand til Ådland barneskole og Åkrasand. Kort avstand til Åkrehamn sentrum med alle hverdagslige fasiliteter.

    Adkomst

    Se Finn.no eller Em-a.no for riktig veibeskrivelse.

    Regulering

    Eiendommen ligger i område regulert til boligformål.

    • kr 2 950 000,- (Prisantydning)
    Omkostninger
    • Dokumentavgift 2,5% av kjøpesum
    • Tinglysing pantedokument kr. 545,-
    • Tinglysing skjøte kr. 545,-
    • Gebyr e-tinglysing kr. 500,-
    • Boligkjøperforsikring(valgfri) kr. 18.900,-
    • kr 94 240,- (Omkostninger totalt)
    • kr 3 044 240,- (Totalpris inkl. omkostninger)

    NB: Regnestykket forutsetter at det kun tinglyses en låneobligasjon og at eiendommen selges til prisantydning da dokumentavgift beregnes med 2.5% av endelig kjøpesum.

  • Kommunale utgifter

    kr 19 212,- pr. 2025. Avløp: 4417,- Eiendomsskatt: 2327,- Feiing: 667,- Renovasjon: 4065,- Slam: 3917,- Vann: 3819,- Det er fire terminer pr år. Avgifter kan variere etter forbruk.

    Ligningsverdi

    Basert på Skatteetatens boligkalkulator beregnes boligens formuesverdi til kr. 873 242 ,- når boligen benyttes som primærbolig. Formuesverdien er en gitt prosent av den beregnede markedsverdien. Beregnet markedsverdi er basert på Statistisk sentralbyrå (SSB) sine opplysninger om omsatte boliger. I beregningen tas det hensyn til boligens beliggenhet, areal, byggeår og boligtype. Det er eier av boligen som fastsetter formuesverdien, men skattemyndighetene kan kontrollere at verdien er satt riktig. Formuesverdi skal ikke overstige: Primærbolig – 25 % av beregnet eller dokumentert markedsverdi opp til kr. 10 000 000, og deretter 70 % av den overskytende markedsverdi Sekundærbolig – 100 % av beregnet eller dokumentert markedsverdi. Formuesverdier som overstiger disse grensene, kan kreves nedjustert av eier.

  • Diverse

    Selger har tegnet avtale om Norgespris på strøm. Denne avtalen følger eiendom og har bindingstid ut 2026.

    Smartstyring medfølger boligen. Dette gjelder smartovner i flere av soverommene, smartstyring av begge varmepumpene og lys ved Philips hue med hue brytere i flere av rommene (stue, ett soverom oppe og begge soverommene nede).

    Sentrale lover

    Eiendommen selges etter reglene i avhendingsloven Eiendommen skal overleveres kjøper i tråd med det som er avtalt. Det er viktig at kjøper setter seg grundig inn i alle salgsdokumentene, herunder salgsoppgave, tilstandsrapport og selgers egenerklæring. Kjøper anses kjent med forhold som er tydelig beskrevet i salgsdokumentene.  Forhold som er beskrevet i salgsdokumentene kan ikke påberopes som mangler. Dette gjelder uavhengig av om kjøper har lest dokumentene. Alle interessenter oppfordres til å undersøke eiendommen nøye, gjerne sammen med fagkyndig før bud inngis. Kjøper som velger å kjøpe usett kan ikke gjøre gjeldende som mangel noe han burde blitt kjent med ved undersøkelsen.Dersom det er behov for avklaringer, anbefaler vi at kjøper rådfører seg med eiendomsmegler eller en bygningssakyndig før det legges inn bud.   Hvis eiendommen ikke er i samsvar med det kjøperen må kunne forvente ut ifra alder, type og synlig tilstand, kan det være en mangel. Det samme gjelder hvis det er holdt tilbake eller gitt uriktige opplysninger om eiendommen. Dette gjelder likevel bare dersom man kan gå ut i fra at det virket inn på avtalen at opplysningen ikke ble gitt eller at feil opplysninger ikke ble rettet i tide på en tydelig måte. En bolig som har blitt brukt i en viss tid, har vanligvis blitt utsatt for slitasje og skader kan ha oppstått. Slik bruksslitasje må kjøper regne med, og det kan avdekkes enkelte forhold etter overtakelse som nødvendiggjør utbedringer. Normal slitasje og skader som nødvendiggjør utbedring, er innenfor hva kjøper må forvente og vil ikke utgjøre en mangel. Boligen kan ha en mangel dersom det er avvik mellom opplyst og faktisk areal, forutsatt at avviket er på 2% eller mer og minimum 1 kvm. Ved beregning av et eventuelt prisavslag eller erstatning må kjøper selv dekke tap/kostnader opptil et beløp på kr 10 000 (egenandel).  Dersom kjøper ikke er forbruker selges eiendommen «som den er», og selgers ansvar er da begrenset jf. avhl. § 3-9, 1. ledd 2. pktm. Avhendingsloven § 3-3 (2) fravikes, og hvorvidt en innendørs arealsvikt karakteriseres som en mangel vurderes etter avhendingsloven § 3-8. Informasjon om kjøpers undersøkelsesplikt, herunder oppfordringen om å undersøke eiendommen nøye, gjelder også for kjøpere som ikke anses som forbrukere. Med forbrukerkjøper menes kjøp av eiendom når kjøperen er en fysisk person som ikke hovedsakelig handler som ledd i næringsvirksomhet.

    Boligselgerforsikring

    Selger har tegnet boligselgerforsikring.

    Boligkjøperforsikring

    Det gjøres oppmerksom på at kjøper har anledning til å tegne boligkjøperforsikring. Forsikringen gir kjøper bistand etter avhendingsloven og dekker inntil 10 timer advokatbistand, skadetakster og utgifter til rettsapparatet mot en egenandel. Forsikringen tegnes senest på kontraktsmøtet. Les mer om forsikringen i salgsoppgaven.

    Bakgrunn for opplysninger i salgsoppgaven

    Salgsoppgaven er utarbeidet ut ifra opplysninger gitt fra selger, befaring av eiendommen samt innhentelse av nødvendige dokumenter og evt. takst.

  • Vedlagt følger Takstrapport og selgers Egenerklæring. Om du mener noen av vedleggene mangler, ta kontakt med megler.

Sist oppdateret: 30. jan. 2026

  • Ansvarlig megler: Fred Lippens
  • Oppdragsnummer: 01250377
  • Eiendomsmegler A AS Org. nr. NO 893527702 MVA

Annonsene kan være mangelfulle i forhold til lovpålagt opplysningsplikt. Før bindende avtale inngås oppfordres interessenter til å innhente komplett informasjon fra meglerforetaket.

Før du fortsetter!

For å gi deg en bedre opplevelse bruker vi informasjonskapsler for å lagre ikke-sensitiv informasjon om de valgene du gjør. Godkjenn vår bruk av cookies, eller tilpass på innstillinger.

Informasjonskapsler som nettstedet ikke kan fungere skikkelig uten. Dette inkluderer informasjonskapsler for tilgang til sikre områder og CSRF-sikkerhet. Vær oppmerksom på at Crafts (CMS) standard informasjonskapsler ikke samler inn personlig eller sensitiv informasjon.

Statistiske informasjonskapsler hjelper oss å forstå hvordan besøkende bruker nettstedet ved å samle inn og rapportere informasjon anonymt.

Markedsføringskapsler brukes til å spore besøkende på tvers av nettsteder. Hensikten er å vise annonser som er relevante og engasjerende for den enkelte bruker og dermed mer verdifulle for utgivere og tredjepartsannonsører.