Nordre Ferkingstadveg 11

Karmøy
Prisantydning

1 500 000,-

  • BRA162㎡
  • EierformSelveier
  • Soverom2
  • Byggeår1947
  • Omkostninger57 740,-
  • Totalpris1 557 740,-

Eldre enebolig på 3 plan med garasje - Flat og pent opparbeidet romslig tomt - Rolig og solrike uteområder

Visning

mandag 30 mars

16:30-17:30

Påmelding
Beskrivelse

Boligen har gjennomgående normal standard sett opp mot byggeår, med behov for enkelte oppgraderinger og løpende vedlikehold.

Utvendig: - Bolig satt opp i mur over to etasjer. - Utvendig mur er pusset og malt. - Takkonstruksjon i tre og yttertekking i skifer.

Overflater: - På gulv er det gulv av laminat, fliser og belegg. - På vegg er det MDF-panel og våtromsplater - Innvendige tak har himlingsplater/agnes takess.

Bad og vaskerom:
Romslig baderom i 1. etasje med fliser på gulv, våtromspanel på vegger og malt panel i tak. Rommet inneholder badekar med glassvegg, toalett på sokkel og seksjon med servant. Det er elektrisk avtrekksvifte i vegg. Varmekabler på gulv. Ukjent årstall på bad.

Vaskerom har malte plater på vegg og slett malt tak. Rommet inneholder opplegg for vaskemaskin og stoppekran. Rommet er ventilert via elektrisk vifte i vegg. Rommet har malt betongoverflate på gulv.

Kjøkken: Prefabrikert innredning med benkeplate i laminat. Servant med blandebatteri. Kjøkkeninnredning fremstår som hel og i god bruksstand. Hvitevarer på kjøkken medfølger salget.

VVS: Vannrør er av kobber og avløpsrør av plast. Varmtvannsbereder står på vaskerom, 194 liter med ukjent produksjonsår.

El-anlegg: Sikringsskap lokalisert i gang 1 etasje og inneholder automat og skrusikringer.

Boligen fremstår som beboelig slik den er i dag, men kjøper må påregne oppgraderinger og vedlikehold for å møte dagens standard og krav.

Garasjen vi trenge vedlikehold før den kan benyttes til parkering.

Detaljer

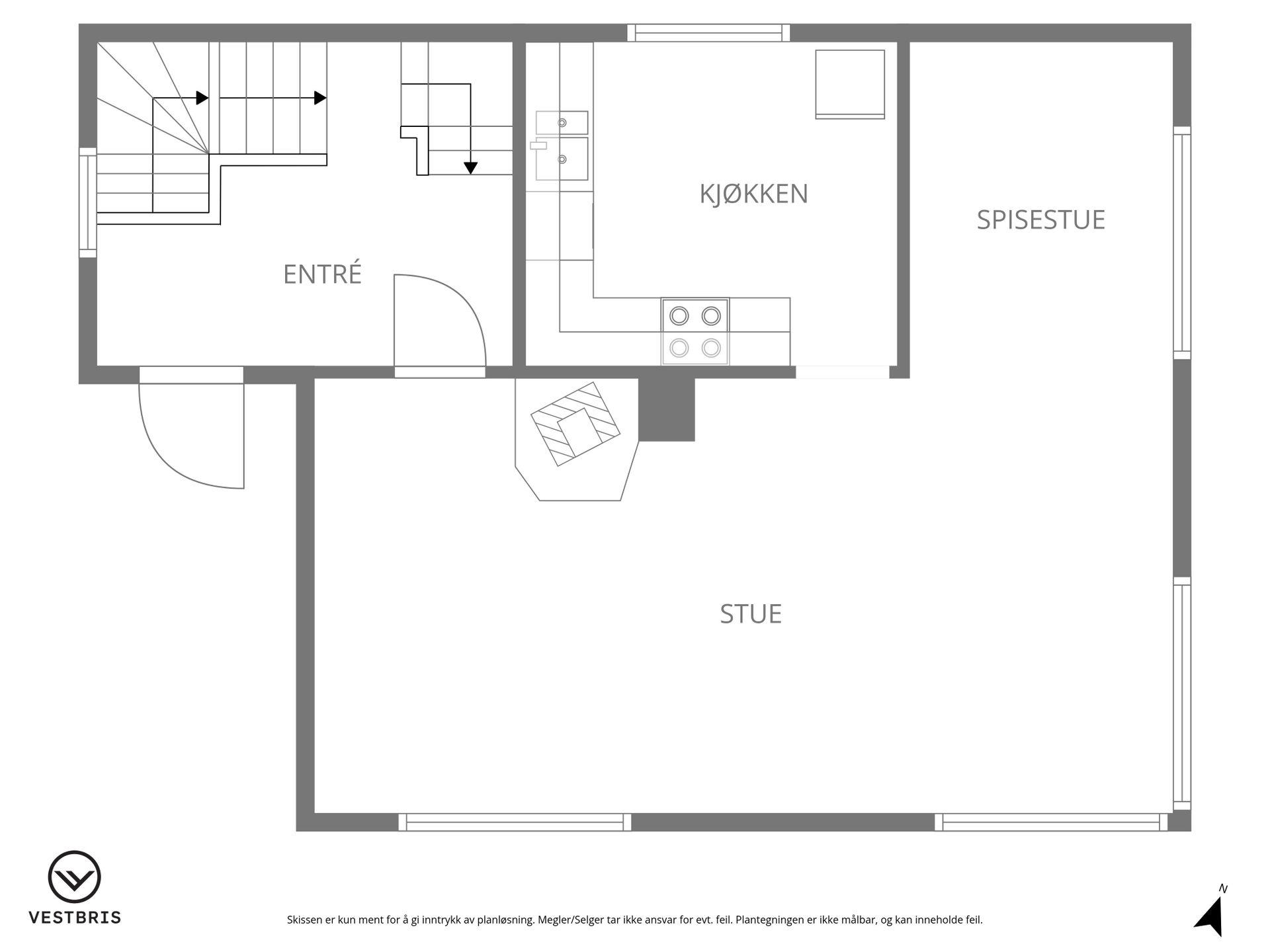
Boligen er innredet over tre plan med en funksjonell og god planløsning:

  1. etasje inneholder entré/gang, bad, stue, soverom og praktisk vaskerom.
  2. etasje byr på gang med utgang til balkong, en luftig stue i tilknytning til kjøkken, med god plass til ønsket møblering. Loftsetasje består av gang, soverom, garderobe og bod, som gir gode oppbevaringsmuligheter.

Garasje: 26m2 Garasjen har enkel standard og renovering må påregnes

Bygningsinformasjon

Kommunen har ikke opprinnlige bygningstegninger på eneboligen og garasje i sitt arkiv. Megler har derfor ikke anledning å få sjekket hva som opprinnelig var godkjent innredet i boligen.

Boligen er oppført i to etasjer i mur, antatt fundamentert på fjell og/eller komprimerte masser. Yttervegger er i mur over to etasje. Vinduer og dører i tre, hovedsakelig med 2-lags isolerglass, samt enkelte enkle glassfelt på loft. Vinduer og dører er fra ulike årstall (1969–2005). Takkonstruksjonen er utført som valmet tak med tresperrer. Boligen er tekket med skifer, antatt fra byggeår. Pipen er oppført i teglstein, og takrenner/nedløp er av plast.

Takstmannens vurdering ved TG2: 1.1 Byggegrunn, fundamenter, grunnmur, drenering og sikring mot vann og fuktighet: - Det er påvist riss, sprekker eller skader på grunnmuren.

2.1 Yttervegger: - Det registreres enkelte mindre riss i murpussen, samt partier med løs eller flassende maling på overflaten.

3.1 Vinduer og ytterdører: - Vinduer og dører i tre, hovedsakelig med 2-lags isolerglass, samt enkelte enkle glassfelt på loft. Vinduer og dører er fra ulike årstall (1969–2005) og fremstår i varierende teknisk stand. Det registreres punkterte isolerglass i 2. etasje og på loft. - Flere vinduene og dører har slitasje på utvendige flater, og enkelte viser begynnende råteskader i karm og/eller ramme.

  1. Tak:
    • Det er påvist fuktskjolder.
    • Det er ikke påvist ventilering/lufting.
    • Registrert noe spor etter stripet borebille (mott) i synlige takbjelker.

6.1 Balkonger, verandaer og lignende: - Registret slitasje og manglende vedlikehold

7.1.1 Bad: - Manglende tilluft under dørblad. - Vindu av tre plassert i våtsone.

7.1.2 Overflate gulv: - Fall mot slut ikke etter dagens krav. - Det er ikke på vist membran trukket opp på terskel. - Ujevne fliser enkelte steder.

7.1.3 Membran, tettesjikt og sluk: - Ikke dokumentert membran eller utførelse rundt sluk, og det foreligger ingen informasjon om alder eller type tettesjikt.

10.1 Wc og innvendige vann- og avløpsrør - Deler av vann- og avløpsanlegg er av eldre dato.

Takstmannens vurdering ved TG3: 4.2 Undertak, lekter og yttertekking (taktekking): - Registrert betydelige råteskader i treverk under takfot. - Utvendige sløyser er gjengrodd og utgjør en lekkasjefare. - Takrennene er betydelig slitt og har redusert funksjon.

Utbedringskostnad vurderes som middels, jf. rapportens sjablonmessig kostnader klasser. Kr 100 000 - 300 000,-

7.2.2 Vaskerom. Overflate gulv: - Ikke påvist tilfredstillende fall til sluk - Ikke påvist tilfredstillende høydeforskjell fra toppen av sluk til toppen av membran ved dørterskel.

Utbedringskostnad vurderes som lav, jf. rapportens sjablonmessig kostnader klasser. Kr 0 - 100 000,-

Ferdigattest

Det foreligger ikke ferdigattest eller midlertidig brukstillatelse. Jf. plan- og bygningsloven § 21-10 (5) utstedes det ikke lengre ferdigattest for tiltak det er søkt om før 1/1-98. Dette innebærer at byggverkene lovlig kan brukes og omsettes uten at det foreligger ferdigattest. Det betyr imidlertid ikke at ulovlig bygde tiltak blir lovlige. Eneboligen er oppsatt med byggeår 1947, mens garasjen har oppsatt byggeår 1958. Ifølge matrikkelrapport mottatt fra kommunen er dette basert på tidspunkt for når bygningene er registrert som "tatt i bruk". Det må derfor påregnes at oppgitt byggeår kan avvike noe.

Ulovlig oppførte tiltak vil kommunen fremdeles kunne forfølge og kreve omsøkt etter dagens regelverk. Kjøper overtar ansvar, risiko og eventuelle konsekvenser knyttet til dette.

Adgang til utleie

Dette er en selveiende bolig som kan leies ut i sin helhet

Vei/vann/kloakk

Offentlig vann via private stikkledninger. Privat avløp/septik. Eiendommen er tilknyttet egen septiktank.

Oppvarming

Elektrisk, varmekabler på badet. Vedovn i stuen i hovedetasjen.

  • Beliggenhet

    Eiendommen ligger i et rolig og landlig område på Ferkingstad, med nærhet til natur og sjø. Området er kjent for sine åpne landskap, gode solforhold og nærhet til flotte tur- og rekreasjonsområder.

    Fra boligen er det kort vei til sjøen, hvor man finner flotte turmuligheter langs kysten, samt gode bade- og fiskemuligheter. Ferkingstad og nærliggende områder byr på et rikt friluftsliv året rundt, enten man ønsker rolige turer, sykkelturer eller aktiviteter ved sjøen.

    Dagligvarebutikk, skole (under rehabilitering) og barnehage finnes i nærområdet, og det er grei avstand til Åkrehamn med et bredere servicetilbud, handel og fasiliteter. Området oppleves som trygt og familievennlig, og er godt egnet for både barnefamilier og de som ønsker en mer landlig livsstil.

    Adkomst

    Se Finn.no eller Em-a.no for riktig veibeskrivelse.

    Regulering

    Eiendommen ligger i et uregulert område, men omfattes av kommunedelplanens arealdel tiliggende et LNF område. Det er opplyst om planlagt bebyggelse på gnr. 22, bnr. 352, beliggende øst for eiendommen, på motsatt side av elven.

    • kr 1 500 000,- (Prisantydning)
    Omkostninger
    • Dokumentavgift 2,5% av kjøpesum
    • Tinglysing pantedokument kr. 545,-
    • Tinglysing skjøte kr. 545,-
    • Gebyr e-tinglysing kr. 250,-
    • Boligkjøperforsikring(valgfri) kr. 18.900,-
    • kr 57 740,- (Omkostninger totalt)
    • kr 1 557 740,- (Totalpris inkl. omkostninger)

    NB: Regnestykket forutsetter at det kun tinglyses en låneobligasjon og at eiendommen selges til prisantydning da dokumentavgift beregnes med 2.5% av endelig kjøpesum.

  • Kommunale utgifter

    kr 15 749,- pr. 2025. Avløp: 3 467,- Eiendomsskatt: 1 719,- Feiing: 767,- Renovasjon: 2 457,- Slam: 3 916,- Vann: 3 423,-Det er fire terminer pr år. Avgifter kan variere etter forbruk.

    Ligningsverdi

    kr 719 510,- for 2025 Basert på prisantydning har Skatteetatens boligkalkulator beregnet boligens formuesverdi til kr. 719 510,- når boligen benyttes som primærbolig.Formuesverdien er en gitt prosent av den beregnede markedsverdien. Beregnet markedsverdi er basert på Statistisk sentralbyrå (SSB) sine opplysninger om omsatte boliger. I beregningen tas det hensyn til boligens beliggenhet, areal, byggeår og boligtype.Det er eier av boligen som fastsetter formuesverdien, men skattemyndighetene kan kontrollere at verdien er satt riktig.Formuesverdi skal ikke overstige:Primærbolig – 25 % av beregnet eller dokumentert markedsverdi opp til kr. 10 000 000, og deretter 70 % av den overskytende markedsverdi Sekundærbolig – 100 % av beregnet eller dokumentert markedsverdi.Formuesverdier som overstiger disse grensene, kan kreves nedjustert av eier.

  • Diverse

    Selger har tegnet avtale om Norgespris på strøm. Denne avtale følger eiendom og har bindingstid ut 2026.

    Sentrale lover

    Eiendommen selges etter reglene i avhendingsloven Eiendommen skal overleveres kjøper i tråd med det som er avtalt. Det er viktig at kjøper setter seg grundig inn i alle salgsdokumentene, herunder salgsoppgave, tilstandsrapport og selgers egenerklæring. Kjøper anses kjent med forhold som er tydelig beskrevet i salgsdokumentene.  Forhold som er beskrevet i salgsdokumentene kan ikke påberopes som mangler. Dette gjelder uavhengig av om kjøper har lest dokumentene. Alle interessenter oppfordres til å undersøke eiendommen nøye, gjerne sammen med fagkyndig før bud inngis. Kjøper som velger å kjøpe usett kan ikke gjøre gjeldende som mangel noe han burde blitt kjent med ved undersøkelsen.Dersom det er behov for avklaringer, anbefaler vi at kjøper rådfører seg med eiendomsmegler eller en bygningssakyndig før det legges inn bud.   Hvis eiendommen ikke er i samsvar med det kjøperen må kunne forvente ut ifra alder, type og synlig tilstand, kan det være en mangel. Det samme gjelder hvis det er holdt tilbake eller gitt uriktige opplysninger om eiendommen. Dette gjelder likevel bare dersom man kan gå ut i fra at det virket inn på avtalen at opplysningen ikke ble gitt eller at feil opplysninger ikke ble rettet i tide på en tydelig måte. En bolig som har blitt brukt i en viss tid, har vanligvis blitt utsatt for slitasje og skader kan ha oppstått. Slik bruksslitasje må kjøper regne med, og det kan avdekkes enkelte forhold etter overtakelse som nødvendiggjør utbedringer. Normal slitasje og skader som nødvendiggjør utbedring, er innenfor hva kjøper må forvente og vil ikke utgjøre en mangel. Boligen kan ha en mangel dersom det er avvik mellom opplyst og faktisk areal, forutsatt at avviket er på 2% eller mer og minimum 1 kvm. Ved beregning av et eventuelt prisavslag eller erstatning må kjøper selv dekke tap/kostnader opptil et beløp på kr 10 000 (egenandel).  Dersom kjøper ikke er forbruker selges eiendommen «som den er», og selgers ansvar er da begrenset jf. avhl. § 3-9, 1. ledd 2. pktm. Avhendingsloven § 3-3 (2) fravikes, og hvorvidt en innendørs arealsvikt karakteriseres som en mangel vurderes etter avhendingsloven § 3-8. Informasjon om kjøpers undersøkelsesplikt, herunder oppfordringen om å undersøke eiendommen nøye, gjelder også for kjøpere som ikke anses som forbrukere. Med forbrukerkjøper menes kjøp av eiendom når kjøperen er en fysisk person som ikke hovedsakelig handler som ledd i næringsvirksomhet.

    Boligselgerforsikring

    Selger har tegnet boligselgerforsikring.

    Boligkjøperforsikring

    Det gjøres oppmerksom på at kjøper har anledning til å tegne boligkjøperforsikring. Forsikringen gir kjøper bistand etter avhendingsloven og dekker inntil 10 timer advokatbistand, skadetakster og utgifter til rettsapparatet mot en egenandel. Forsikringen tegnes senest på kontraktsmøtet. Les mer om forsikringen i salgsoppgaven.

    Bakgrunn for opplysninger i salgsoppgaven

    Salgsoppgaven er utarbeidet ut ifra opplysninger gitt fra selger, befaring av eiendommen samt innhentelse av nødvendige dokumenter og evt. takst.

    • Tilstandsrapport
    • Selgers Egenerklæring
    • Ledningskart
    • Matrikkelrapport
    • Eiendomskart med grenser
    • Energiattest

    Om du mener noen av vedleggene mangler, ta kontakt med megler.

Sist oppdateret: 24. mar. 2026

  • Oppdragsnummer: 01260041
  • Eiendomsmegler A AS Org. nr. NO 893527702 MVA

Annonsene kan være mangelfulle i forhold til lovpålagt opplysningsplikt. Før bindende avtale inngås oppfordres interessenter til å innhente komplett informasjon fra meglerforetaket.

Før du fortsetter!

For å gi deg en bedre opplevelse bruker vi informasjonskapsler for å lagre ikke-sensitiv informasjon om de valgene du gjør. Godkjenn vår bruk av cookies, eller tilpass på innstillinger.

Informasjonskapsler som nettstedet ikke kan fungere skikkelig uten. Dette inkluderer informasjonskapsler for tilgang til sikre områder og CSRF-sikkerhet. Vær oppmerksom på at Crafts (CMS) standard informasjonskapsler ikke samler inn personlig eller sensitiv informasjon.

Statistiske informasjonskapsler hjelper oss å forstå hvordan besøkende bruker nettstedet ved å samle inn og rapportere informasjon anonymt.

Markedsføringskapsler brukes til å spore besøkende på tvers av nettsteder. Hensikten er å vise annonser som er relevante og engasjerende for den enkelte bruker og dermed mer verdifulle for utgivere og tredjepartsannonsører.