Ølmedalsvegen 276

Vindafjord
Prisantydning

1 150 000,-

  • BRA64㎡
  • EierformSelveier
  • Soverom3
  • Byggeår1969
  • Omkostninger49 240,-
  • Totalpris1 199 240,-

"Lille Røden" Hytte med usjenert beliggenhet i naturskjønne omgivelser

Visning

mandag 11 mai

17:00-18:00

Påmelding
Beskrivelse

Hytten holder koselig men enkel hyttestandard.

Detaljer

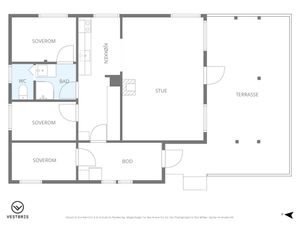
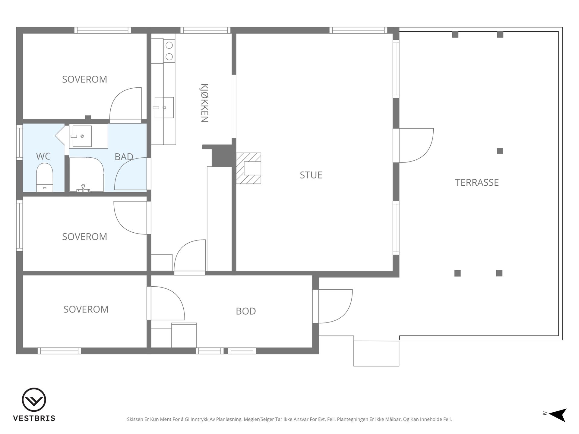
Hytten har en praktisk og hyggelig planløsning med entré/gang som ønsker deg velkommen inn. Videre finner du en lun stue med plass til både sofakrok og spisebord, et funksjonelt kjøkken med det du trenger for feriedager, samt bad med dusj, servant og biotoalett. Hytten har tre soverom som gir gode overnattingsmuligheter for familie og gjester. I tillegg følger et separat anneks som gir ekstra fleksibilitet, enten til oppbevaring, hobbyrom, gjester eller som en ekstra stue. Totalt sett fremstår hytten som et trivelig og enkelt fristed med gode muligheter for hyggelige opphold året rundt.

Bygningsinformasjon

Det finnes ikke dokumentasjon på hyttens byggeår. Eiendommen er utskilt i 1968. Tidligere eier har opplyst byggeår til 1969 med påbygg ca 1980. Kommunen har registrert i matrikkel bygning/hytte i 1980 og anneks/uthus i 2006. Megler har ikke anledning å få sjekket nærmere opp i opprinnelig byggeår.

Bolig er satt opp på søyler i betong. Bygget opp i bindingsverkskonstruksjon med ytterkledning i tre. Saltakskonstruksjon med pappshingel på tak.

Vedalgt følger tilstandsrapport datert 24.04.26, som må leses i sin helhet. Utdrag av anmerkninger følger under.

TAKSTMANNENS VURDERING VED TG2:

1.1 Byggegrunn, fundamenter, grunnmur, drenering og sikring mot vann og fuktighet TG2 – Avvik som kan utvikle seg til følgeskader. Tidligere utvasking av masser og dokumenterte skjevheter gir økt risiko, men forholdene virker stabile det siste året.

1.2 Krypekjeller TG2 – Avvik som kan utvikle seg til følgeskader. God ventilasjon er positivt, men manglende tilkomst gir usikkerhet om tilstanden i krypkjelleren og økt risiko for skjulte skader.

1.3 Terrengforhold TG2 – Avvik som kan utvikle seg til følgeskader. Tidligere utvasking av masser og skjevheter i søyler viser at byggegrunn har vært utsatt, men etablerte drensrør har forbedret forholdene. Historikken tilsier fortsatt behov for oppfølging.

2.1Yttervegger TG2 – Avvik som kan utvikle seg til følgeskader. Eldre kledning med lokale skader, manglende musebånd og utett overgang mot terrasse gir økt risiko for fukt- og råteskader.

3.1 Vinduer og ytterdører TG2 – Avvik som kan utvikle seg til følgeskader. Alder, råteskader og redusert funksjon gir økt risiko for skadeutvikling og behov for utskifting.

4.2 Undertak, lekter og yttertekking (taktekkingen) TG2 – Avvik som kan utvikle seg til følgeskader. Aldret shingel, løs tekking og eldre renner/nedløp gir økt risiko for vanninntrengning og skadeutvikling.

6.1 Balkonger, verandaer og lignende TG2 – Avvik som kan utvikle seg til følgeskader. Terrassen er i god stand, men mangelfull overgang mot yttervegg gir økt risiko for fuktpåvirkning og skadeutvikling.

8.1 Kjøkken Kjøkken TG2 – Avvik som kan utvikle seg til følgeskader. Alder, skader og slitasje på innredningen gir økt risiko for videre skadeutvikling. WC og innvendige vann- og avløpsrør

10.1 WC og innvendige vann- og avløpsrør TG2 – Avvik som kan utvikle seg til følgeskader. Manglende avløpsløsning og frostutsatte rør gir økt risiko for tekniske og miljømessige problemer.

10.2 Varmtvannsbereder TG2 – Avvik som kan utvikle seg til følgeskader. Berederens alder gir økt risiko for lekkasje og funksjonssvikt, selv om den fungerer i dag.

TAKSTMANNENS VURDERING VED TG3: 7.1.3 Bad Membran, tettesjiktet og sluk TG3 – Store eller alvorlige avvik. Baderommet mangler tettesjikt og er bygget med materialer som ikke tåler fukt, kombinert med begrenset ventilasjon. Dette gir høy risiko for skadeutvikling. Utbedringskostnaden vurderes som lav, jf. rapportens sjablonmessige kostnadsklasser.

UTHUS: Det er oppført et frittliggende uthus på tomten. Konstruksjonen står på støpte fundament. Gulvet har trekonstruksjon, og veggene er bindingsverk konstruksjon av tre. Utvendig er uthuset bordkledd med malt kledning. Uthuset har vinduer med tre karmer og isolerglass, ytterdøren er av tre. Det er registrert råtepunkter i rekkverket ved inngangen og stedvis i kledningen. Innvendig er det tegn til fukt merker i undertaket mot sør vest. Ytterdøren har slitt overflate. Uthuset er ikke nærmere vurdert og tilstandsgrad settes ikke.

Adgang til utleie

Dette er en selveiende hytte som kan leies ut i sin helhet.

Vei/vann/kloakk

Offentlig vann via private stikkledninger. Biotoalett.

Oppvarming

Vedovn i stue og ellers elektrisk oppvarming. I de rom hvor det på visning ikke er montert panelovner, vil det heller ikke medfølge i handelen.

  • Regulering

    Eiendommen ligger i LNFR-område (landbruk, natur og friluft samt reindrift) hvor det i kommuneplankartet er avmerket som faresone ras- og skredfare . I dette området er det nødvendig med søknad om dispensasjon for eventuelle fremtidige endringer/byggetiltak.

    • kr 1 150 000,- (Prisantydning)
    Omkostninger
    • Dokumentavgift 2,5% av kjøpesum
    • Tinglysing pantedokument kr. 545,-
    • Tinglysing skjøte kr. 545,-
    • Gebyr e-tinglysing kr. 500,-
    • Boligkjøperforsikring(valgfri) kr. 18.900,-
    • kr 49 240,- (Omkostninger totalt)
    • kr 1 199 240,- (Totalpris inkl. omkostninger)

    NB: Regnestykket forutsetter at det kun tinglyses en låneobligasjon og at eiendommen selges til prisantydning da dokumentavgift beregnes med 2.5% av endelig kjøpesum.

  • Kommunale utgifter

    kr 8 482,- pr. 2025. I kommunale avgifter inngår gebyr vann hytte, vannavgift, feiing/branntilsyn og eiendomsskatt fritid.

    Ligningsverdi

    Basert på prisantydning har Skatteetatens boligkalkulator beregnet boligens formuesverdi til kr. 1.150.000,- når boligen benyttes som sekundærbolig.Formuesverdi skal ikke overstige: Primærbolig – 25 % av beregnet eller dokumentert markedsverdi opp til kr. 10 000 000, og deretter 70 % av den overskytende markedsverdi Sekundærbolig – 100 % av beregnet eller dokumentert markedsverdi. Formuesverdier som overstiger disse grensene, kan kreves nedjustert av eier.

  • Diverse

    Selger har tegnet avtale om Norgespris på strøm. Denne avtale følger eiendom og har bindingstid ut 2026.

    Sentrale lover

    Eiendommen selges etter reglene i avhendingsloven Eiendommen skal overleveres kjøper i tråd med det som er avtalt. Det er viktig at kjøper setter seg grundig inn i alle salgsdokumentene, herunder salgsoppgave, tilstandsrapport og selgers egenerklæring. Kjøper anses kjent med forhold som er tydelig beskrevet i salgsdokumentene.  Forhold som er beskrevet i salgsdokumentene kan ikke påberopes som mangler. Dette gjelder uavhengig av om kjøper har lest dokumentene. Alle interessenter oppfordres til å undersøke eiendommen nøye, gjerne sammen med fagkyndig før bud inngis. Kjøper som velger å kjøpe usett kan ikke gjøre gjeldende som mangel noe han burde blitt kjent med ved undersøkelsen.Dersom det er behov for avklaringer, anbefaler vi at kjøper rådfører seg med eiendomsmegler eller en bygningssakyndig før det legges inn bud.   Hvis eiendommen ikke er i samsvar med det kjøperen må kunne forvente ut ifra alder, type og synlig tilstand, kan det være en mangel. Det samme gjelder hvis det er holdt tilbake eller gitt uriktige opplysninger om eiendommen. Dette gjelder likevel bare dersom man kan gå ut i fra at det virket inn på avtalen at opplysningen ikke ble gitt eller at feil opplysninger ikke ble rettet i tide på en tydelig måte. En bolig som har blitt brukt i en viss tid, har vanligvis blitt utsatt for slitasje og skader kan ha oppstått. Slik bruksslitasje må kjøper regne med, og det kan avdekkes enkelte forhold etter overtakelse som nødvendiggjør utbedringer. Normal slitasje og skader som nødvendiggjør utbedring, er innenfor hva kjøper må forvente og vil ikke utgjøre en mangel. Boligen kan ha en mangel dersom det er avvik mellom opplyst og faktisk areal, forutsatt at avviket er på 2% eller mer og minimum 1 kvm. Ved beregning av et eventuelt prisavslag eller erstatning må kjøper selv dekke tap/kostnader opptil et beløp på kr 10 000 (egenandel).  Dersom kjøper ikke er forbruker selges eiendommen «som den er», og selgers ansvar er da begrenset jf. avhl. § 3-9, 1. ledd 2. pktm. Avhendingsloven § 3-3 (2) fravikes, og hvorvidt en innendørs arealsvikt karakteriseres som en mangel vurderes etter avhendingsloven § 3-8. Informasjon om kjøpers undersøkelsesplikt, herunder oppfordringen om å undersøke eiendommen nøye, gjelder også for kjøpere som ikke anses som forbrukere. Med forbrukerkjøper menes kjøp av eiendom når kjøperen er en fysisk person som ikke hovedsakelig handler som ledd i næringsvirksomhet.

    Boligselgerforsikring

    Selger har tegnet boligselgerforsikring.

    Boligkjøperforsikring

    Det gjøres oppmerksom på at kjøper har anledning til å tegne boligkjøperforsikring. Forsikringen gir kjøper bistand etter avhendingsloven og dekker inntil 10 timer advokatbistand, skadetakster og utgifter til rettsapparatet mot en egenandel. Forsikringen tegnes senest på kontraktsmøtet. Les mer om forsikringen i salgsoppgaven.

    Bakgrunn for opplysninger i salgsoppgaven

    Salgsoppgaven er utarbeidet ut ifra opplysninger gitt fra selger, befaring av eiendommen samt innhentelse av nødvendige dokumenter og evt. takst.

  • Vedlagt følger Takstrapport og selgers Egenerklæring. Om du mener noen av vedleggene mangler, ta kontakt med megler.

Sist oppdateret: 30. apr. 2026

  • Ansvarlig megler: Hege Stange
  • Oppdragsnummer: 01260086
  • Eiendomsmegler A AS Org. nr. NO 893527702 MVA

Annonsene kan være mangelfulle i forhold til lovpålagt opplysningsplikt. Før bindende avtale inngås oppfordres interessenter til å innhente komplett informasjon fra meglerforetaket.

Før du fortsetter!

For å gi deg en bedre opplevelse bruker vi informasjonskapsler for å lagre ikke-sensitiv informasjon om de valgene du gjør. Godkjenn vår bruk av cookies, eller tilpass på innstillinger.

Informasjonskapsler som nettstedet ikke kan fungere skikkelig uten. Dette inkluderer informasjonskapsler for tilgang til sikre områder og CSRF-sikkerhet. Vær oppmerksom på at Crafts (CMS) standard informasjonskapsler ikke samler inn personlig eller sensitiv informasjon.

Statistiske informasjonskapsler hjelper oss å forstå hvordan besøkende bruker nettstedet ved å samle inn og rapportere informasjon anonymt.

Markedsføringskapsler brukes til å spore besøkende på tvers av nettsteder. Hensikten er å vise annonser som er relevante og engasjerende for den enkelte bruker og dermed mer verdifulle for utgivere og tredjepartsannonsører.