Salhusvegen 213

Haugesund
Prisantydning

4 490 000,-

  • BRA312㎡
  • EierformSelveier
  • Soverom5
  • Byggeår1966
  • Omkostninger132 490,-
  • Totalpris4 622 490,-

Haugesund - Sakkestad - Enebolig med stor tomt og flott sjøutsikt - Stort potensiale

Visning

tirsdag 4 november

16:00-17:00

Påmelding
Beskrivelse
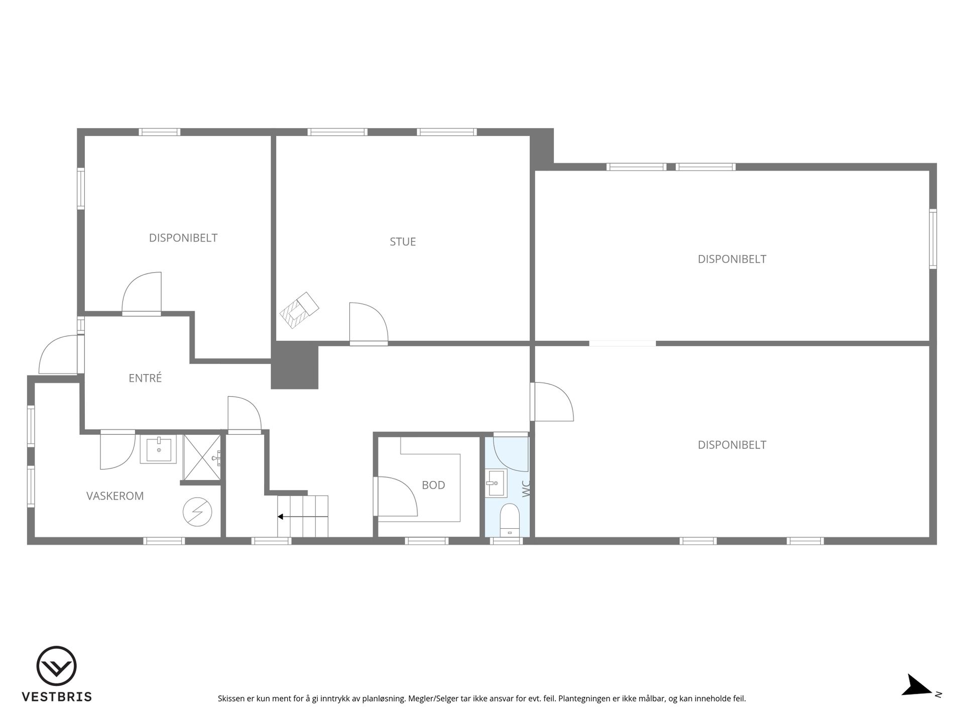
  • Boligen holder hovedsakelig en eldre, men velholdt standard. Vinduene og noen balkongdører ble skiftet i 2009. Fin, familievennlig planløsning med hele 5 soverom, 3 stuer, separat vaskerom og stor hage/uteområde. I hovedetasjen kommer den nydelige utsikten til sin rett via de store vindusflatene.
  • Takstmannen konkluderer: "Boligen fremstår som solid og i bra stand ihht alder. Det registreres avvik, men få avvik som krever umiddelbar utbedring".
  • Panel og plater i tak. Vegger har tapet og panel. Gulver i all hovedsak belegg, noe tepper.
  • Eldre kjøkkeninnredning med finerte fronter og benkeplate i laminat og heldekkende beslag ved servant. Fliser mellom benk og overskap. Mekanisk avtrekk i ventilator. Innredning fremstår som hel og i bra stand med bruksmerker.
  • Romslig bad i 2. etasje med dusjkabinett og servant nedfelt i innredning. Baderom har våtromsbelegg på gulv. Opplegg for vaskemaskin. Rommet er ventilert via elektrisk vifte i vegg og ventil i vindu. Det er målt for fukt i underkant av installasjoner.
  • Baderom i 1. etasje av eldre dato har våtromspanel på vegg og trepanel i tak. Baderom har våtromsbelegg på gulv. Rommet inneholder dusjnisje, servant med blandebatteri og varmtvannstank. Rommet er ventilert via ventilkanal til yttervegg og i vindu. Varmtvannsbereder fra 2006 på ca. 150 liter lokalisert på bad i 1 etasje.
  • Separat wc og separat vaskerom.
  • Kjellerrom med masse oppbevaringsplass.
  • Automatsikringer i sikringstavle.
  • Takkonstruksjonen framstår i god stand alder tatt i betraktning. Taktekkingen vurderes å være i god beskaffenhet iht. alder.
Detaljer

Eiendomsmegler A v/Vidar Opheim har gleden av å presentere en perle av en eiendom med fantastisk utsiktsbeliggenhet mot Karmsundet. Dette er en meget innholdsrik enebolig. I tillegg har du nesten 1,3 solrike mål å boltre deg på.

Boligen er oppført over 2 plan + kryploft, og inneholder:

  • Hovedetasje med 2 stuer, kjøkken, 5 soverom, bad/vaskerom, wc, hall, trapperom og vindfang. Masse lagringsplass i bod, kott og 2 stk uinnredede kjellerrom. Boligen har balkong med støpt dekke med fliser og rekkverk i tre.
  • Kjeller med stue, bad, wc, vaskerom og gang. Deler av etasje råkjeller.
  • Kaldt loft der deler av gulvet er tekket med gulvbord.

Garasje med plass til 1 bil. Enkel garasje bygget vegg i vegg med bolig. Støpt såle og bindingsverk med ytterkledning i tre. Saltakskonstruksjon med betongtakstein. Stålport med elektrisk portåpner.

Bygningsinformasjon

Bolig satt opp med støpt grunnmur. Bindingsverk og ytterkledning i tre. Saltakskonstruksjon med betongtakstein.

I hht godkjente tegninger skal det ene soverommet være et kontor, men da det er like krav for rom for varig opphold anses ikke dette som et avvik og man anser derfor alle 5 soverommene som godkjente soverom. I boligens underetasje er det godkjent med vaskerom og wc, mens stua og badet ikke er inntegnet på godkjente tegninger og anses derfor ikke som godkjente rom. På de godkjente tegningene fremkommer det vaskerom, wc, gang, matbod, bytterom, ett hobbyrom og to disponible rom (boder).

I vedlagt tilstandsrapport fra takstmann fremkommer det følgende TG3 avvik. - Museband ikke observert der dette ble kontrollert. Underkledning i gesimskasse på garasje har råteskader og her må kledningsbord skiftes. TG3 og estimert kostnad ca kr. 10-15000,-.

Følgende TG2 avvik er registrert: 1.1 Byggegrunn, fundamenter og grunnmur TG2 vurdert utifra alder på bygningsdel 1.3 Drenering TG2 vurdert utifra beskreve avvik og alder på bygningsdel 2.1 Yttervegger og veggkonstruksjon TG2 vurdert utifra beskrevne avvik og alder på hoveddelens av boligens ytterkledning. 4.2 Undertak, lekter og yttertekking (taktekkingen) TG2 vurdert utifra at forventet levetid på yttertekking av takstein er overskredet 4.3 Renner, nedløp og beslag TG2 vurdert utifra at halvparten av bygningsdelens forventede levetid er overskredet. 5.1 Innvendig Loft TG2 vurdert utifra alder på bygningsdel. 6.1 Terrasser, balkonger, trapper o.l. TG2 vurdert utifra beskrevne avvik og alder på bygningsdel. 7.1 Piper og ildsteder TG2 vurdert utifra alder ifht forventet levetid på bygningsdel. 8.1 Etasjeskillere TG2 vurdert utifra alder på bygningsdel 9.1.1 Kjelleretasje delvis under terreng Veggenes og himlingens overflater TG2 vurdert utifra alder på bygningsdel 9.1.2 Kjelleretasje delvis under terreng Gulvets overflate TG2 vurdert utifra alder på bygningsdel 9.1.3 Kjelleretasje delvis under terreng Fuktmåling og ventilasjon TG2 vurdert utifra beskrevne avvik på bygningsdel. 10.1.1Bad 1 etasje Overflate vegger og himling TG2 vurdert utifra beskrevne avvik og at halvparten av bygningsdelens forventede levetid er overskredet. 10.1.2Bad 1 etasje Overflate gulv TG2 vurdert utifra beskrevne avvik og at halvparten av bygningsdelens forventede levetid er overskredet. 10.1.3Bad 1 etasje Membran, tettesjiktet og sluk TG2 vurdert utifra at halvparten av bygningsdelens forventede levetid er overskredet 10.2.1Bad 2 etasje Overflate vegger og himling TG2 vurdert utifra beskrevne avvik og at halvparten av bygningsdelens forventede levetid er overskredet. 10.2.2Bad 2 etasje Overflate gulv TG2 vurdert utifra beskrevne avvik og at halvparten av bygningsdelens forventede levetid er overskredet. 10.2.3Bad 2 etasje Membran, tettesjiktet og sluk TG2 vurdert utifra at halvparten av bygningsdelens forventede levetid er overskredet 11.1 Kjøkken Kjøkken TG2 vurdert utifra beskrevne avvik og alder på bygningsdel 13.1 WC og innvendige vann- og avløpsrør TG2 vurdert utifra at halvparten av bygningsdelens forventede levetid er overskredet. 13.2 Varmtvannsbereder TG2 vurdert utifra at halvparten av varmtvannsberederens forventede levetid er overskredet.

Ferdigattest

Det foreligger ferdigattest for nybygget enebolig m/ garasje.

Adgang til utleie

Dette er en selveiende bolig som kan leies ut i sin helhet.

Vei/vann/kloakk

Eiendommmen har adkomst via privat vei. Offentlig vann og avløp. Det ligger kommunal avløpsledning over tomten mot vest , like foran boligen. Se vedlagt ledningskart.

Oppvarming

Elektrisk oppvarming. I de rom hvor det på visning ikke er montert panelovner, vil det heller ikke medfølge i handelen.

  • Beliggenhet

    Fantastisk beliggenhet like ved Solsiden - høyt og fritt over sjøen, og med spektakulær utsikt mot Karmsundet. Eiendommen må rett og slett må oppleves for å få riktig inntrykk!

    På Sakkestad bor du sentralt, med kort vei til det meste. Etter en rask kjøretur befinner du deg i sentrumskjernen Haugesund, Norheim og handelsområdet Raglamyr. Området anses som meget attraktivt.

    Adkomst

    Enkel adkomst via Salhusvegen.

    Se Gulesider/kart.

    Regulering

    Eiendommen ligger i et område hovedsakelig regulert til boligformål, og grenser til Helgelandsjordene som er solgt til utbyggere. Området rundt er regulert til konsentrert bebyggelse og planlegges utbygget med boliger. Kopi av ny reguleringsplan kan sees hos megler eller på hjemmesidene til Haugesund kommune.

    Delarealer på tomta er regulert som følger: Delareal 29 m Formål Veg Feltnavn a_Veg 05.

    Delareal 4 m Formål Gatetun Feltnavn o_Gatetun2

    Delareal 13 m RP Hensynsonenavn H140_11 RP Sikring Frisikt

    Delareal 1 278 m RP Hensynsonenavn H220_01

    Delareal 1 155 m Formål Boligbebyggelse-frittliggende småhusbebyggelse Feltnavn BF1

    Delareal 128 m RP Hensynsonenavn H190_01 RP Sikring Andre sikringssoner

    Delareal 89 m Formål Gatetun Feltnavn o_Gatetun1.

    • kr 4 490 000,- (Prisantydning)
    Omkostninger
    • Dokumentavgift 2,5% av kjøpesum
    • Tinglysing pantedokument kr. 545,-
    • Tinglysing skjøte kr. 545,-
    • Gebyr e-tinglysing kr. 250,-
    • Boligkjøperforsikring(valgfri) kr. 18.900,-
    • kr 132 490,- (Omkostninger totalt)
    • kr 4 622 490,- (Totalpris inkl. omkostninger)

    NB: Regnestykket forutsetter at det kun tinglyses en låneobligasjon og at eiendommen selges til prisantydning da dokumentavgift beregnes med 2.5% av endelig kjøpesum.

  • Kommunale utgifter

    kr 13 249,- pr. 2025. Gjelder for vann, avløp, feiing og eiendomsskatt. Boligen har vært bebodd av 1 person og delvis ubebodd i løpet av året. Ny eier må påregne økte avgifter, da disse beregnes etter forbruk. Renovasjon til HIM kommer i tillegg på kr. 3667,- pr. år.

    Ligningsverdi

    Vi har ikke mottatt ligningsverdi. Ny eier må påregne at ligningsverdien vil bli ca 30% av markedsverdi.

  • Diverse

    Selger opplyser at "ved utflytting av løsøre under orkanen Amy, fylte balkongen seg opp med vann ca 10 cm, det ble tatt strakstiltak, og balkongen tømt og sluket renset, men dette er nok et problem som ny eier må være obs på"

    Sentrale lover

    Eiendommen selges etter reglene i avhendingsloven Eiendommen skal overleveres kjøper i tråd med det som er avtalt. Det er viktig at kjøper setter seg grundig inn i alle salgsdokumentene, herunder salgsoppgave, tilstandsrapport og selgers egenerklæring. Kjøper anses kjent med forhold som er tydelig beskrevet i salgsdokumentene.  Forhold som er beskrevet i salgsdokumentene kan ikke påberopes som mangler. Dette gjelder uavhengig av om kjøper har lest dokumentene. Alle interessenter oppfordres til å undersøke eiendommen nøye, gjerne sammen med fagkyndig før bud inngis. Kjøper som velger å kjøpe usett kan ikke gjøre gjeldende som mangel noe han burde blitt kjent med ved undersøkelsen.Dersom det er behov for avklaringer, anbefaler vi at kjøper rådfører seg med eiendomsmegler eller en bygningssakyndig før det legges inn bud.   Hvis eiendommen ikke er i samsvar med det kjøperen må kunne forvente ut ifra alder, type og synlig tilstand, kan det være en mangel. Det samme gjelder hvis det er holdt tilbake eller gitt uriktige opplysninger om eiendommen. Dette gjelder likevel bare dersom man kan gå ut i fra at det virket inn på avtalen at opplysningen ikke ble gitt eller at feil opplysninger ikke ble rettet i tide på en tydelig måte. En bolig som har blitt brukt i en viss tid, har vanligvis blitt utsatt for slitasje og skader kan ha oppstått. Slik bruksslitasje må kjøper regne med, og det kan avdekkes enkelte forhold etter overtakelse som nødvendiggjør utbedringer. Normal slitasje og skader som nødvendiggjør utbedring, er innenfor hva kjøper må forvente og vil ikke utgjøre en mangel. Boligen kan ha en mangel dersom det er avvik mellom opplyst og faktisk areal, forutsatt at avviket er på 2% eller mer og minimum 1 kvm. Ved beregning av et eventuelt prisavslag eller erstatning må kjøper selv dekke tap/kostnader opptil et beløp på kr 10 000 (egenandel).  Dersom kjøper ikke er forbruker selges eiendommen «som den er», og selgers ansvar er da begrenset jf. avhl. § 3-9, 1. ledd 2. pktm. Avhendingsloven § 3-3 (2) fravikes, og hvorvidt en innendørs arealsvikt karakteriseres som en mangel vurderes etter avhendingsloven § 3-8. Informasjon om kjøpers undersøkelsesplikt, herunder oppfordringen om å undersøke eiendommen nøye, gjelder også for kjøpere som ikke anses som forbrukere. Med forbrukerkjøper menes kjøp av eiendom når kjøperen er en fysisk person som ikke hovedsakelig handler som ledd i næringsvirksomhet.

    Boligselgerforsikring

    Selger har tegnet boligselgerforsikring.

    Boligkjøperforsikring

    Det gjøres oppmerksom på at kjøper har anledning til å tegne boligkjøperforsikring. Forsikringen gir kjøper bistand etter avhendingsloven og dekker inntil 10 timer advokatbistand, skadetakster og utgifter til rettsapparatet mot en egenandel. Forsikringen tegnes senest på kontraktsmøtet. Les mer om forsikringen i salgsoppgaven.

    Bakgrunn for opplysninger i salgsoppgaven

    Salgsoppgaven er utarbeidet ut ifra opplysninger gitt fra selger, befaring av eiendommen samt innhentelse av nødvendige dokumenter og evt. takst.

  • Vedlagt følger Takstrapport og selgers Egenerklæring. Om du mener noen av vedleggene mangler, ta kontakt med megler.

Sist oppdateret: 28. okt. 2025

  • Ansvarlig megler: Vidar Opheim
  • Oppdragsnummer: 01250300
  • Eiendomsmegler A AS Org. nr. NO 893527702 MVA

Annonsene kan være mangelfulle i forhold til lovpålagt opplysningsplikt. Før bindende avtale inngås oppfordres interessenter til å innhente komplett informasjon fra meglerforetaket.

Før du fortsetter!

For å gi deg en bedre opplevelse bruker vi informasjonskapsler for å lagre ikke-sensitiv informasjon om de valgene du gjør. Godkjenn vår bruk av cookies, eller tilpass på innstillinger.

Informasjonskapsler som nettstedet ikke kan fungere skikkelig uten. Dette inkluderer informasjonskapsler for tilgang til sikre områder og CSRF-sikkerhet. Vær oppmerksom på at Crafts (CMS) standard informasjonskapsler ikke samler inn personlig eller sensitiv informasjon.

Statistiske informasjonskapsler hjelper oss å forstå hvordan besøkende bruker nettstedet ved å samle inn og rapportere informasjon anonymt.

Markedsføringskapsler brukes til å spore besøkende på tvers av nettsteder. Hensikten er å vise annonser som er relevante og engasjerende for den enkelte bruker og dermed mer verdifulle for utgivere og tredjepartsannonsører.