Kinotunet 3-1

Karmøy
Prisantydning

4 900 000,-

  • BRA82㎡
  • EierformAndel
  • Soverom2
  • Byggeår
  • Omkostninger6 340,-
  • Totalpris4 906 340,-
  • Felles/mnd2 558,-

Prosjektert ny leilighet i Kinotunet borettslag - Garasjeanlegg, heis, gjesteleilighet, fellesrom - Bo sentralt og lev godt!

Beskrivelse

Leiligheten leveres med høy moderne standard. -Se vedlagt leveransebeskrivelse og prospekt for mer info.

Detaljer

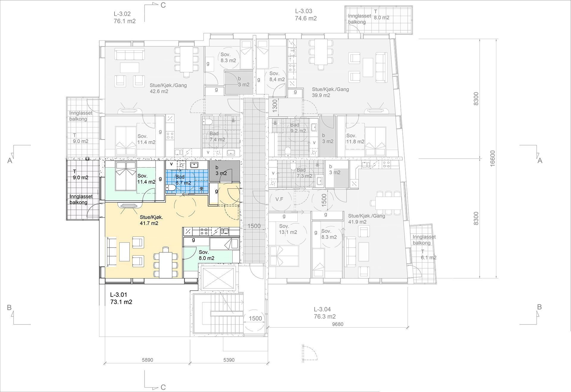
Leiligheten inneholder: Stue/kjøkken, 2 soverom, bad, bod og innglasset balkong.

Ferdigattest

Kjøper skal overta boligen ved overtakelsesforretning. Selger plikter å besørge ferdigattest innen overtagelse. Dersom overtagelse blir avholdt ved midlertidig brukstillatelse (foreligger) skal selger rekvirere ferdigattest innen brukstillatelsens utløp. Overtakelse av felles- og utearealer skal gjennomføres av selger og borettslagets styre, og overtakelse av boligen kan skje uavhengig av dette.

Adgang til utleie

Etter borettslagslovens bestemmelser kan andelseieren ikke uten samtykke fra styret leie ut boligen utenom til familie i opp og nedadstigende rekkefølge. Det er noen unntaksbestemmelser, konferer megler.

Vei/vann/kloakk

Offentlig vann og kloakk via private stikkledninger.

Oppvarming

Ventilasjonsvarmepumpe (NIBE F470) med varmegjenvinning.

  • Beliggenhet

    Leiligheten har beliggenhet midt i sentrum av Kopervik, med kort gangavstand til hverdagslige fasiliteter.

    Adkomst

    Se Finn.no eller Em-a.no for riktig veibeskrivelse.

    Regulering

    Detaljregulering for Severin Larsens veg 2, gnr. 58/222 er gjeldende.

    • kr 4 900 000,- (Prisantydning)
    Omkostninger
    • Andelskapital kr. 5000,-
    • Gebyr ved tinglysing av andel i borettslag kr. 545,-
    • Gebyr ved tinglysing av pantedokument kr. 545,-
    • Gebyr for utskrift av panteattest kr. 250,-
    • kr 6 340,- (Omkostninger totalt)
    • kr 4 906 340,- (Totalpris inkl. omkostninger)
  • Fellesutgifter

    kr 2 558,- Tv/internett, Heime App, kommunale avgifter, diverse vedlikehold, drift heis, forretningsfører, bygningsforsikring. Dette er kun budsjettert/forslag og vil vedtas endelig av styret.

  • Diverse

    Finansieringsmodellen er fleksibel, og borettslaget tilbyr IN-ordning. Oppgitte månedlige kostnader for denne leiligheten er basert på at fellesgjelden er nedbetalt. Ta kontakt med megler for mer info.

    Sentrale lover

    Kjøpet reguleres av bustadoppføringsloven. Dette innebærer bl.a. at kjøper har krav på garanti iht. buofl. § 12. I de tilfeller hvor kjøper er profesjonell iht. bustadoppføringslovens regler, dvs. gjør kjøpet som ledd i næringsvirksomhet, kan selger kreve at avtalen reguleres av avhendingsloven.

    Bakgrunn for opplysninger i salgsoppgaven

    Salgsoppgaven er utarbeidet ut ifra opplysninger gitt fra selger, befaring av eiendommen samt innhentelse av nødvendige dokumenter og evt. takst.

Sist oppdateret: 26. mar. 2026

  • Ansvarlig megler: Fred Lippens
  • Oppdragsnummer: 01260089
  • Eiendomsmegler A AS Org. nr. NO 893527702 MVA

Annonsene kan være mangelfulle i forhold til lovpålagt opplysningsplikt. Før bindende avtale inngås oppfordres interessenter til å innhente komplett informasjon fra meglerforetaket.

Før du fortsetter!

For å gi deg en bedre opplevelse bruker vi informasjonskapsler for å lagre ikke-sensitiv informasjon om de valgene du gjør. Godkjenn vår bruk av cookies, eller tilpass på innstillinger.

Informasjonskapsler som nettstedet ikke kan fungere skikkelig uten. Dette inkluderer informasjonskapsler for tilgang til sikre områder og CSRF-sikkerhet. Vær oppmerksom på at Crafts (CMS) standard informasjonskapsler ikke samler inn personlig eller sensitiv informasjon.

Statistiske informasjonskapsler hjelper oss å forstå hvordan besøkende bruker nettstedet ved å samle inn og rapportere informasjon anonymt.

Markedsføringskapsler brukes til å spore besøkende på tvers av nettsteder. Hensikten er å vise annonser som er relevante og engasjerende for den enkelte bruker og dermed mer verdifulle for utgivere og tredjepartsannonsører.