Steffen Staalesens gate 29

Haugesund
Prisantydning

3 490 000,-

  • BRA202㎡
  • EierformSelveier
  • Soverom4
  • Byggeår1920
  • Omkostninger107 490,-
  • Totalpris3 597 490,-

Sjarmerende enebolig i rolig og sentrumsnært område på Hasseløy

Visning

tirsdag 9 desember

16:30-17:30

Påmelding
Beskrivelse

Takstmannens konklusjon: "Bolig fremstår som solid og i bra stand. Det registreres avvik, men få av slik at art at har behov for umiddelbar utbedring. I bolig av en slik alder som denne, så må det forventes noe skjulte feil og mangler som en tilstandsbefaring ikke vil kunne avdekke."

  • Bolig har tepper, fliser og laminat på gulv.
  • Vegger med tapet og panel.
  • Malte overflater og panel i tak.
  • Bad har fliser på gulv og vegg. Fliser på gulv antatt fra 2005. Membran 2005. Plastsluk med synlig membran i klemring. Rommet inneholder tett dusjkabinett, vegghengt toalett, seksjon med vask og fordelerskap vannrør. Rommet er ventilert via vifte i vegg og noe tilluft under dørblad
  • Vaskerom med fliser på gulv og delvis på vegg. Resterende malt betong. Rommet inneholder opplegg for vaskemaskin og dusjbatteri. Våtrom er innredet før 1997. Dette gjør at rommet automatisk får TG 3.
  • Prefabrikkert kjøkkeninnredning med profilerte fronter. Benkeplate av massiv tre. Fliser fra benk til tak. Frittstående hvitevarer. Dobbelkummet servant med blandebatteri. Mekanisk avtrekk i fritthengende ventilatorhette.
  • Renner og nedløp i plast og aluminium. Renner og nedløp mot gateplan av nyere dato.
  • Det meste av avløp og vannrør(rør i rør)i bolig er av nyere dato og antatt fra 2005. Bolig har vannrør i kobber i kjelleretasje og plast i 1 og 2 etasje. Avløpsrør i plast, noe støpegods i kjeller.
  • Varmtvannsbereder er fra ca. 2012. Varmtvannsbereder ca 200 liter lokalisert i bod i kjeller.
  • El-bil lader.
  • Automatsikringer i sikringstavle.
  • Sarnafildekke på balkong nytt i 2022.
Detaljer

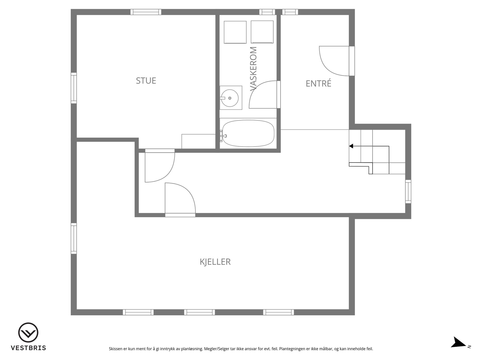
Støpt trapp opp til inngangsdør med sidespeil og påmontert kodelås. Inngang til gang med fin hvitmalt trapp opp til 2. etasje, fliser på gulv ved inngangsdøra og ellers eikeplank på resten av gulvet. Panelovn.

Soverom1 med kinolerret og prosjektor som medfølger kjøpet. I dag brukt som TV stue. Laminatgulv og malt tapet på vegger. Panelovn.

Kjøkken med fliser og varmekabler på gulv, heltre benkeplate med stor dobbel nedfelt vask, oppvaskmaskin og stort amerikansk kjøleskap med isbitmaskin. Alle hvitevarer på kjøkken medfølger kjøpet. Mosaikkfliser over benkeplata, spotter i deler av taket og glassdør inn til stua. Det er også en liten benkeplate med under- og overskap i hjørnet mot stua. Det er trapperom til kjeller fra kjøkkenet.

Stue med en stavs eikeplank, integrert vedovn med glassfront, varmepumpe, malt tapet på vegger og panelovn.

I svingen til trappa opp til andre etasje er det et toalett med mosaikkfliser på gulv, wc, panelovn, moderne servant med underskap og speil. Malt tapet på vegger.

  1. Etasje: Man ankommer gangen i andre etasje som har laminatgulv og utgang til luftebalkong i tre med sarnafildekke fra 2022 samt trapp videre opp til loftsetasjen. Hvitmalt panel på vegger og spotter i tak.

Soverom2 med laminatgulv, malte og tapetserte vegger og panelovn.

Soverom3 med laminatgulv og malt tapet på vegger. Stort soverom med plass til sofa i tillegg til seng.

Soverom4 med tepp på gulv, plassbygget skyvedørsgarderobe med innredning, malt panel på vegger og panelovn. Romslig soverom.

Bad med vegghengt toalett, fliser og varmekabler på gulv, dusjkabinett, sluk og opplegg for varmt og kaldt vann med tanke på å ha badekar, rør-i-rør skap, baderomsinnredning med dobbel underskuff, speilskap og et ekstra høyt sideskap.

Loft: Trapp opp til kaldloft med dør mellom trappa og loftet. Loftet består av en romslig gang og to mindre rom i hver ende av huset. Enkle glass i vinduer her.

Kjeller: Trapperom ned til gang med fliselagt gulv og egen utgang. Malte betongvegger og noe panel.

Vaskerom med mosaikkfliser på gulv, opplegg for vaskemaskin og tørketrommel, servant, dusj og sluk.

Kjellerstue med laminatgulv, malt tapet på vegger og panelovn. Ikke omsøkt som rom for varig opphold.

Lagerrom med malt betonggulv og hyllesystem for god lagring.

Bygningsinformasjon

Antatt tømret hus. Utvendig pusset grunnmur antatt av teglstein/sparesteinsmur. Ytterklednig i tre. Saltakskonstruksjon med skifer på tak.

Vinduer er godkjent endret 28.01.1974. Tegninger er mottatt.

Beskrivelse av lovmessige mangler pga avvik mellom godkjente byggetegninger og faktisk bruk: Kjøkken og soverom i 1. etasje har byttet plass i forhold til godkjente byggetegninger. I 2. etasje er det også avvik mellom godkjente byggetegninger og faktisk bruk. 2 av soverommene er godkjent som stue. Dette har samme krav og anses ikke som en lovmessig mangel. Men badet er på tegninger godkjent som et kjøkken og denne endringen er søknadspliktig. Det er ikke tegninger av loftsetasjen. Tegningen er fra 1932 og det er uklart om plan- og bygningsloven var gjeldene for Hasseløy på det tidspunktet huset ble bygget. Loven gjaldt på det tidspunktet bare sentrum og det er usikkert om Hasseløy var ansett som en del av sentrumsområdet den gang. I kjelleren er det avvik mellom godkjente tegninger og faktisk bruk. Kjellerstua er ikke godkjent og må anses som en bod. Videre er det godkjent at badet skal være i kjelleren. I tillegg til vaskerom, et wc og boder.

Disse endringene er ikke omsøkt godkjent og kjøper overtar ansvaret for dette.

Følgende tilstandsavvik (TG 2 og TG3) fremkommer i rapporten: TAKSTMANNENS VURDERING VED TG3: 10.1.1Vaskerom kjeller Overflate vegger og himling TG3 vurdert utifra alder på bygningsdel. Fyller ikke lenger formålet og utskiftninger må påregnes. Meglers kommentar: Det er ikke gitt et kostnadsestimat på dette av takstmannen. Kontakt takstmannen direkte om dette er av avgjørende betydning.

TAKSTMANNENS VURDERING VED TG2: 1.1 Byggegrunn, fundamenter og grunnmur TG2 vurdert utifra alder på bygningsdel. Tiltak ikke påkrevd. 1.3 Drenering TG2 vurdert utifra beskrevne avvik og alder på bygningsdel. Tiltak må vurderes ifht fremtidig bruk av kjelleretasje. 2.1 Yttervegger og veggkonstruksjon TG2 vurdert utifra beskrevne avvik og alder på bygningsdel. Tiltak som utskiftninger og vedlikehold må påregnes. 3.1 Vinduer og ytterdører TG2 vurdert utifra beskrevne avvik og alder på bygningsdel. Tiltak som utvendig vedlikehold påkrevd. Noen utskiftninger må påregnes. 4.1 Takkonstruksjon, taktekking og skorstein over tak TG2 vurdert utifra beskrevne avvik og alder på bygningsdel. Tiltak må påregnes. Se punkt 4.2 og 5.1 4.2 Undertak, lekter og yttertekking (taktekkingen) TG2 vurdert utifra beskrevne avvik og alder på bygningsdel. 4.3 Renner, nedløp og beslag TG2 vurdert utifra beskrevne avvik og alder på bygningsdel. Noen utskiftninger må påregnes. 5.1 Innvendig Loft TG2 vurdert utifra beskrevne avvik og alder på bygningsdel. Tiltak må påregnes og bygningsdel må undersøkes i sin helhet. 7.1 Piper og ildsteder TG2 vurdert utifra beskrevne avvik og alder på bygningsdel. Tiltak må påregnes. 8.1 Etasjeskillere TG2 vurdert utifra alder på bygningsdel. Tiltak ikke påkrevd. 9.1.1 Kjelleretasje delvis under terreng Veggenes og himlingens overflater TG2 vurdert utifra beskrevne avvik og alder på bygningsdel. Tiltak må påregnes. 9.1.2 Kjelleretasje delvis under terreng Gulvets overflate TG2 vurdert utifra beskrevne avvik og alder på bygningsdel. Tiltak må påregnes. 9.1.3 Kjelleretasje delvis under terreng Fuktmåling og ventilasjon TG2 vurdert utifra beskrevne avvik og alder på bygningsdel. Tiltak må påregnes og størrelse på tiltak må vurderes utifra fremtidig bruk. Fortsatt bruk av avfukter anbefales. 10.1.2Vaskerom kjeller Overflate gulv TG3 vurdert utifra alder på bygningsdel. Fyller ikke lenger formålet og utskiftninger må påregnes. 10.2.1Bad 2 etasje Overflate vegger og himling. TG2 10.2.2Bad 2 etasje Overflate gulv TG2 vurdert utifra beskrevne avvik og alder på bygningsdel. Tiltak ikke påkrevd, men bygningsdel må jevnlig overvåkes. 10.2.3Bad 2 etasje Membran, tettesjiktet og sluk TG2 vurdert utifra alder på bygningsdel. Tiltak ikke påkrevd, men med tanke på alder på membran så må bygningsdel jevnlig overvåkes 13.2 Varmtvannsbereder TG2 vurdert utifra at halvparten av bygningsdelens forventede levetid er overskredet. Tiltak ikke påkrevd. 13.5 Ventilasjon TG2 vurdert utifra beskrevne avvik på bygningsdel. Tiltak må påregnes.

Ferdigattest

Det foreligger ikke ferdigattest eller midlertidig brukstillatelse. Jf. plan- og bygningsloven § 21-10 (5) utstedes det ikke lengre ferdigattest for tiltak det er søkt om før 1/1-98. Dette innebærer at byggverkene lovlig kan brukes og omsettes uten at det foreligger ferdigattest. Det betyr imidlertid ikke at ulovlig bygde tiltak blir lovlige. Ulovlig oppførte tiltak vil kommunen fremdeles kunne forfølge og kreve omsøkt etter dagens regelverk. Kjøper overtar ansvar, risiko og eventuelle konsekvenser knyttet til dette.

Adgang til utleie

Dette er en selveiende bolig som kan leies ut i sin helhet.

Vei/vann/kloakk

Adkomst via offentlig vei.

Oppvarming

Pipe i tegl antatt fra byggeår. Vedovn i stue. Elektrisk oppvarming. I de rom hvor det på visning ikke er montert panelovner, vil det heller ikke medfølge i handelen. Siste branntilsyn i boligen var 26.02.2019. Feiing ble utført sist 24.10.2023. Det ble ikke registrert noen avvik.

  • Beliggenhet

    Eiendommen ligger meget sentralt plassert på Hasseløy i Haugesund. Eiendommen ligger kun få meter fra småbåthavn med mulighet for å søke/ kjøpe båtplass. Hasseløy er den nordste av byens to sentrumsøyer. Stedet består av eneboliger, tomannsboliger og diverse småindustri. Denne boligen ligger i en rolig gate med lite med trafikk. Fra boligen er det kun noen få meters avstand fra stor lekeplass med egen fotballøkke. Ca 100 meter til nærmeste barnehage m.m. Sentrumskjernen i Haugesund ligger kun 5 minutters gange fra boligen. Småbåthavn og strandpromenade ligger kun ca 50 meter fra. Barne og ungdomsskole ligger 700-800 meter fra boligen. Pitters pub som ligger helt sør på Hasseløy ligger kun ca 150 meter fra eiendommen.

    Adkomst

    En kan åpne annonsen på finn.no, på annonsens høyre side er det en kartskisse. Ved å trykke på kartet får du enkelt tilgang til en reiserute fra din start-destinasjon til boligen.

    Regulering

    Eiendommen ligger i område regulert til boligformål. Eiendommen ligger i hensynssone 7. Alle arbeider på fasade og takflater skal avklares med byantikvar.

    Delarealer

    Delareal 355 m KP Hensyn Bevaring kulturmiljø KP HensynsonenavnH570_7

    Delareal 355 m KP HensynsonenavnH350_2 KP Fare Brann-/eksplosjonsfare

    Delareal 257 m Arealbruk Boligbebyggelse, Nåværende Områdenavn B

    Delareal 98 m Arealbruk Veg, Nåværende Områdenavn Veg

    • kr 3 490 000,- (Prisantydning)
    Omkostninger
    • Dokumentavgift 2,5% av kjøpesum
    • Tinglysing pantedokument kr. 545,-
    • Tinglysing skjøte kr. 545,-
    • Gebyr e-tinglysing kr. 250,-
    • Boligkjøperforsikring(valgfri) kr. 18.900,-
    • kr 107 490,- (Omkostninger totalt)
    • kr 3 597 490,- (Totalpris inkl. omkostninger)

    NB: Regnestykket forutsetter at det kun tinglyses en låneobligasjon og at eiendommen selges til prisantydning da dokumentavgift beregnes med 2.5% av endelig kjøpesum.

  • Kommunale utgifter

    kr 15 791,- pr. 2025. Gjelder avløp, vann, feiing og eiendomskatt. Det er fire terminer pr år. Avgifter varierer etter forbruk. I tillegg kommer renovasjon til HIM på kr. 3667,- pr. år.

    Ligningsverdi

    Vi har ikke mottatt ligningsverdi. Ny eier må påregne at ligningsverdien vil bli ca 25% av markedsverdi.

  • Diverse

    Selger har tegnet avtale om Norgespris på strøm. Denne avtale følger eiendom og har bindingstid ut 2026.

    Sentrale lover

    Eiendommen selges etter reglene i avhendingsloven Eiendommen skal overleveres kjøper i tråd med det som er avtalt. Det er viktig at kjøper setter seg grundig inn i alle salgsdokumentene, herunder salgsoppgave, tilstandsrapport og selgers egenerklæring. Kjøper anses kjent med forhold som er tydelig beskrevet i salgsdokumentene.  Forhold som er beskrevet i salgsdokumentene kan ikke påberopes som mangler. Dette gjelder uavhengig av om kjøper har lest dokumentene. Alle interessenter oppfordres til å undersøke eiendommen nøye, gjerne sammen med fagkyndig før bud inngis. Kjøper som velger å kjøpe usett kan ikke gjøre gjeldende som mangel noe han burde blitt kjent med ved undersøkelsen.Dersom det er behov for avklaringer, anbefaler vi at kjøper rådfører seg med eiendomsmegler eller en bygningssakyndig før det legges inn bud.   Hvis eiendommen ikke er i samsvar med det kjøperen må kunne forvente ut ifra alder, type og synlig tilstand, kan det være en mangel. Det samme gjelder hvis det er holdt tilbake eller gitt uriktige opplysninger om eiendommen. Dette gjelder likevel bare dersom man kan gå ut i fra at det virket inn på avtalen at opplysningen ikke ble gitt eller at feil opplysninger ikke ble rettet i tide på en tydelig måte. En bolig som har blitt brukt i en viss tid, har vanligvis blitt utsatt for slitasje og skader kan ha oppstått. Slik bruksslitasje må kjøper regne med, og det kan avdekkes enkelte forhold etter overtakelse som nødvendiggjør utbedringer. Normal slitasje og skader som nødvendiggjør utbedring, er innenfor hva kjøper må forvente og vil ikke utgjøre en mangel. Boligen kan ha en mangel dersom det er avvik mellom opplyst og faktisk areal, forutsatt at avviket er på 2% eller mer og minimum 1 kvm. Ved beregning av et eventuelt prisavslag eller erstatning må kjøper selv dekke tap/kostnader opptil et beløp på kr 10 000 (egenandel).  Dersom kjøper ikke er forbruker selges eiendommen «som den er», og selgers ansvar er da begrenset jf. avhl. § 3-9, 1. ledd 2. pktm. Avhendingsloven § 3-3 (2) fravikes, og hvorvidt en innendørs arealsvikt karakteriseres som en mangel vurderes etter avhendingsloven § 3-8. Informasjon om kjøpers undersøkelsesplikt, herunder oppfordringen om å undersøke eiendommen nøye, gjelder også for kjøpere som ikke anses som forbrukere. Med forbrukerkjøper menes kjøp av eiendom når kjøperen er en fysisk person som ikke hovedsakelig handler som ledd i næringsvirksomhet.

    Boligselgerforsikring

    Selger har tegnet boligselgerforsikring.

    Boligkjøperforsikring

    Det gjøres oppmerksom på at kjøper har anledning til å tegne boligkjøperforsikring. Forsikringen gir kjøper bistand etter avhendingsloven og dekker inntil 10 timer advokatbistand, skadetakster og utgifter til rettsapparatet mot en egenandel. Forsikringen tegnes senest på kontraktsmøtet. Les mer om forsikringen i salgsoppgaven.

    Bakgrunn for opplysninger i salgsoppgaven

    Salgsoppgaven er utarbeidet ut ifra opplysninger gitt fra selger, befaring av eiendommen samt innhentelse av nødvendige dokumenter og evt. takst.

  • Vedlagt følger Takstrapport og selgers Egenerklæring. Om du mener noen av vedleggene mangler, ta kontakt med megler.

Sist oppdateret: 28. nov. 2025

  • Ansvarlig megler: Vidar Opheim
  • Oppdragsnummer: 01250313
  • Eiendomsmegler A AS Org. nr. NO 893527702 MVA

Annonsene kan være mangelfulle i forhold til lovpålagt opplysningsplikt. Før bindende avtale inngås oppfordres interessenter til å innhente komplett informasjon fra meglerforetaket.

Før du fortsetter!

For å gi deg en bedre opplevelse bruker vi informasjonskapsler for å lagre ikke-sensitiv informasjon om de valgene du gjør. Godkjenn vår bruk av cookies, eller tilpass på innstillinger.

Informasjonskapsler som nettstedet ikke kan fungere skikkelig uten. Dette inkluderer informasjonskapsler for tilgang til sikre områder og CSRF-sikkerhet. Vær oppmerksom på at Crafts (CMS) standard informasjonskapsler ikke samler inn personlig eller sensitiv informasjon.

Statistiske informasjonskapsler hjelper oss å forstå hvordan besøkende bruker nettstedet ved å samle inn og rapportere informasjon anonymt.

Markedsføringskapsler brukes til å spore besøkende på tvers av nettsteder. Hensikten er å vise annonser som er relevante og engasjerende for den enkelte bruker og dermed mer verdifulle for utgivere og tredjepartsannonsører.