Vestre Karmøyveg 569

Karmøy
Prisantydning

2 290 000,-

  • BRA255㎡
  • EierformSelveier
  • Soverom4
  • Byggeår1955
  • Omkostninger77 490,-
  • Totalpris2 367 490,-

Ferkingstad- Enebolig med dobbel garasje - Oppgradert med nytt taktekke i 2020, fleste vinduer og kledning fra ca. 2009!

Visning

onsdag 15 oktober

16:15-17:15

Påmelding
Beskrivelse

Boligen holder gjennomgående god standard, godt vedlikeholdt og er oppgradert ved behov og i nyere tid:

-Kjelleretasje: Entrè/hovedinngang i denne etasjen. Forøvrig svært romslig og god plass til oppbevaringsløsninger. Stort rom brukt til oppbevaring (tidligere forretning). Denne etasjen må påregnes oppgradering/renovering for å nå dagens standard (stue og vaskerom/våtrom), se tilstandsrapport.

-Første etasje: Romslig stue, som slipper inn rikelig med naturlig dagslys gjennom vinduene. Det er god plass til stort spisebord, tv-krok og øvrig ønsket møblement. Stuen er pusset opp i senere tid og har nøytrale/moderne farger på overflater. Det er både varmepumpe og vedovn til oppvarmingskilder. Varmepumpen er ca. 5 år gammel. Kjøkken i eget rom med åpen dør løsning. Kjøkkenet har belegg på gulv og eikefinert innredning m/god benke og skapplass. Benkeplate i laminat. Fliser som "backsplash". Stort vindu som slipper inn godt med dagslys, samt plass til frokostbord. Fra stuen er det direkte adkomst til sørvendt veranda. Romslig og lys gang med god plass til bla. garderobe eller annet ønsket møblement. Fra gangen har du tilkomst til både stuen, badet, soverommet og loftsetasjen/kjeller. God størrelse på bad. Pusset opp med nytt dusjkabinett, moderne baderomsmøbler og downlights i nyere tid. Det er også opplegg for vaskemaskin og tørketrommel. Varmekabler i gulv. Hovedsoverommet er romslig med plass til stor dobbeltseng og øvrig møblement. Direkte adkomst til luftebalkong mot vest.

-Loftsetasje: Denne etasjen inneholder 3 soverom. Hvorav et av soverommene er svært romslig og kan benyttes som lekerom/tv-stue ved behov. Flere oppbevaringsmuligheter i plassbygde skap og knevegger i loftsetasjen. Lys og luftig mellomgang i "trapperommet".

Detaljer

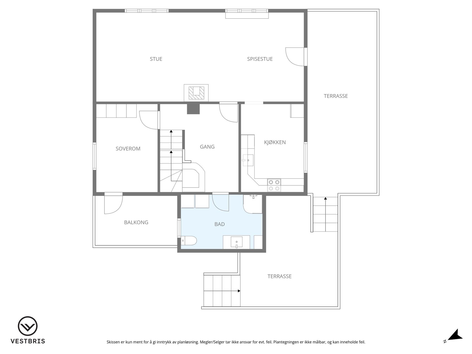
Boligen er over 3 plan og inneholder:

-Kjelleretasje: Gang, stue,vaskerom. -Første etasje: Stue, kjøkken, gang, soverom, bad. -Loftsetasje: 3 soverom, gang.

Bygningsinformasjon

Grunnmur i teglstein. Bindingsverk og ytterkledning i tre. Saltakskonstruksjon med betongtakstein.

TAKSTMANNENS VURDERING VED TG3: 9.1.1 1 etasje delvis under terreng Veggenes og himlingens overflater TG3 vurdert utifra beskrevne avvik og alder på bygningsdel. Tiltak må påregnes og ytterligere skader inne i utlektet konstruksjon utelukkes ikke. Takstmannens prisvurdering ved utskiftning antas mellom Kr. 100 000. - og 300.000.-

9.1.2 1 etasje delvis under terreng Gulvets overflate TG3 vurdert utifra beskrevne avvik og alder på bygningsdel. Tiltak må påregnes og ytterligere skader inne i opplektet konstruksjon utelukkes ikke Takstmannens prisvurdering ved utskiftning antas mellom Kr. 100 000. - og 300.000.-

9.1.3 1 etasje delvis under terreng Fuktmåling og ventilasjon TG3 vurdert utifra beskrevne avvik og alder på bygningsdel. Tiltak påkrevd.

10.1.1Vaskerom 1 etasje Overflate vegger og himling TG3 vurdert utifra beskrevne avvik og alder på bygningsdel. Tiltak påkrevd Takstmannens prisvurdering ved utskiftning antas mellom Kr. 50.000. - og 100.000.-

10.1.2Vaskerom 1 etasje Overflate gulv TG3 vurdert utifra beskrevne avvik og alder på bygningsdel. Tiltak påkrevd. Takstmannens prisvurdering ved utskiftning antas mellom Kr. 25.000. - og 50.000.-

10.1.3Vaskerom 1 etasje Membran, tettesjiktet og sluk TG3 vurdert utifra beskrevne avvik og alder på bygningsdel. Tiltak påkrevd.

Ferdigattest

Det foreligger ikke ferdigattest eller midlertidig brukstillatelse. Jf. plan- og bygningsloven § 21-10 (5) utstedes det ikke lengre ferdigattest for tiltak det er søkt om før 1/1-98. Dette innebærer at byggverkene lovlig kan brukes og omsettes uten at det foreligger ferdigattest. Det betyr imidlertid ikke at ulovlig bygde tiltak blir lovlige. Ulovlig oppførte tiltak vil kommunen fremdeles kunne forfølge og kreve omsøkt etter dagens regelverk. Kjøper overtar ansvar, risiko og eventuelle konsekvenser knyttet til dette.

Kommunen har ikke opprinnelige bygningstegninger. Megler har derfor ikke anledning til å sjekke hva som er godkjent innredet i boligen.

Adgang til utleie

Dette er en selveiende bolig som kan leies ut i sin helhet.

Vei/vann/kloakk

Offentlig vann via private stikkledninger. Privat avløp/septik. Det ligger offentlig vannledning inn på tomt.

Oppvarming

Elektrisk oppvarming. I de rom hvor det på visning ikke er montert panelovner, vil det heller ikke medfølge i handelen.

  • Beliggenhet

    Eiendommen har beliggenhet like sør for Ferkingstad sentrum i et landlig område med spredt boligbebyggelse. Kort avstand til skole, dagligvare og barnehage. Bussforbindelse mot Åkrehamn like ved eiendommen. (Det er bestemt at Ferkingstad skole skal bli værende, ref.kommunestyremøte, kilde Karmøynytt publisert 28.04.2025). Ca. 5 km til Åkrehamn sentrum, med alle fasiliteter man trenger i hverdagen.

    Adkomst

    Se Finn.no eller Em-a.no for korrekt veibeskrivelse.

    Regulering

    Eiendommen ligger i LNFR-område (landbruk, natur og friluft samt reindrift). I dette området er det nødvendig med søknad om dispensasjon for eventuelle fremtidige endringer/byggetiltak.

    • kr 2 290 000,- (Prisantydning)
    Omkostninger
    • Dokumentavgift 2,5% av kjøpesum
    • Tinglysing pantedokument kr. 545,-
    • Tinglysing skjøte kr. 545,-
    • Gebyr e-tinglysing kr. 250,-
    • Boligkjøperforsikring(valgfri) kr. 18.900,-
    • kr 77 490,- (Omkostninger totalt)
    • kr 2 367 490,- (Totalpris inkl. omkostninger)

    NB: Regnestykket forutsetter at det kun tinglyses en låneobligasjon og at eiendommen selges til prisantydning da dokumentavgift beregnes med 2.5% av endelig kjøpesum.

  • Kommunale utgifter

    kr 12 245,- pr. 2024. Det er fire terminer pr år. Avgifter varierer etter forbruk.

    Ligningsverdi

    kr 760 928,- for 2023 Vi har ikke mottatt ligningsverdi. Ny eier må påregne at ligningsverdien vil bli ca 30% av markedsverdi.

  • Sentrale lover

    Eiendommen selges etter reglene i avhendingsloven Eiendommen skal overleveres kjøper i tråd med det som er avtalt. Det er viktig at kjøper setter seg grundig inn i alle salgsdokumentene, herunder salgsoppgave, tilstandsrapport og selgers egenerklæring. Kjøper anses kjent med forhold som er tydelig beskrevet i salgsdokumentene.  Forhold som er beskrevet i salgsdokumentene kan ikke påberopes som mangler. Dette gjelder uavhengig av om kjøper har lest dokumentene. Alle interessenter oppfordres til å undersøke eiendommen nøye, gjerne sammen med fagkyndig før bud inngis. Kjøper som velger å kjøpe usett kan ikke gjøre gjeldende som mangel noe han burde blitt kjent med ved undersøkelsen.Dersom det er behov for avklaringer, anbefaler vi at kjøper rådfører seg med eiendomsmegler eller en bygningssakyndig før det legges inn bud.   Hvis eiendommen ikke er i samsvar med det kjøperen må kunne forvente ut ifra alder, type og synlig tilstand, kan det være en mangel. Det samme gjelder hvis det er holdt tilbake eller gitt uriktige opplysninger om eiendommen. Dette gjelder likevel bare dersom man kan gå ut i fra at det virket inn på avtalen at opplysningen ikke ble gitt eller at feil opplysninger ikke ble rettet i tide på en tydelig måte. En bolig som har blitt brukt i en viss tid, har vanligvis blitt utsatt for slitasje og skader kan ha oppstått. Slik bruksslitasje må kjøper regne med, og det kan avdekkes enkelte forhold etter overtakelse som nødvendiggjør utbedringer. Normal slitasje og skader som nødvendiggjør utbedring, er innenfor hva kjøper må forvente og vil ikke utgjøre en mangel. Boligen kan ha en mangel dersom det er avvik mellom opplyst og faktisk areal, forutsatt at avviket er på 2% eller mer og minimum 1 kvm. Ved beregning av et eventuelt prisavslag eller erstatning må kjøper selv dekke tap/kostnader opptil et beløp på kr 10 000 (egenandel).  Dersom kjøper ikke er forbruker selges eiendommen «som den er», og selgers ansvar er da begrenset jf. avhl. § 3-9, 1. ledd 2. pktm. Avhendingsloven § 3-3 (2) fravikes, og hvorvidt en innendørs arealsvikt karakteriseres som en mangel vurderes etter avhendingsloven § 3-8. Informasjon om kjøpers undersøkelsesplikt, herunder oppfordringen om å undersøke eiendommen nøye, gjelder også for kjøpere som ikke anses som forbrukere. Med forbrukerkjøper menes kjøp av eiendom når kjøperen er en fysisk person som ikke hovedsakelig handler som ledd i næringsvirksomhet.

    Boligselgerforsikring

    Selger har tegnet boligselgerforsikring.

    Boligkjøperforsikring

    Det gjøres oppmerksom på at kjøper har anledning til å tegne boligkjøperforsikring. Forsikringen gir kjøper bistand etter avhendingsloven og dekker inntil 10 timer advokatbistand, skadetakster og utgifter til rettsapparatet mot en egenandel. Forsikringen tegnes senest på kontraktsmøtet. Les mer om forsikringen i salgsoppgaven.

    Bakgrunn for opplysninger i salgsoppgaven

    Salgsoppgaven er utarbeidet ut ifra opplysninger gitt fra selger, befaring av eiendommen samt innhentelse av nødvendige dokumenter og evt. takst.

  • Vedlagt følger Takstrapport og selgers Egenerklæring. Om du mener noen av vedleggene mangler, ta kontakt med megler.

Sist oppdateret: 6. okt. 2025

  • Ansvarlig megler: Fred Lippens
  • Oppdragsnummer: 01250284
  • Eiendomsmegler A AS Org. nr. NO 893527702 MVA

Annonsene kan være mangelfulle i forhold til lovpålagt opplysningsplikt. Før bindende avtale inngås oppfordres interessenter til å innhente komplett informasjon fra meglerforetaket.

Før du fortsetter!

For å gi deg en bedre opplevelse bruker vi informasjonskapsler for å lagre ikke-sensitiv informasjon om de valgene du gjør. Godkjenn vår bruk av cookies, eller tilpass på innstillinger.

Informasjonskapsler som nettstedet ikke kan fungere skikkelig uten. Dette inkluderer informasjonskapsler for tilgang til sikre områder og CSRF-sikkerhet. Vær oppmerksom på at Crafts (CMS) standard informasjonskapsler ikke samler inn personlig eller sensitiv informasjon.

Statistiske informasjonskapsler hjelper oss å forstå hvordan besøkende bruker nettstedet ved å samle inn og rapportere informasjon anonymt.

Markedsføringskapsler brukes til å spore besøkende på tvers av nettsteder. Hensikten er å vise annonser som er relevante og engasjerende for den enkelte bruker og dermed mer verdifulle for utgivere og tredjepartsannonsører.